Quan tâm: 7723
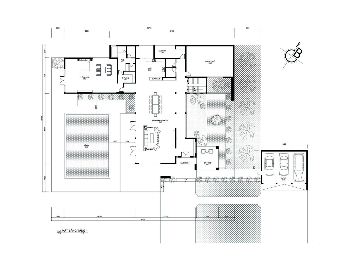
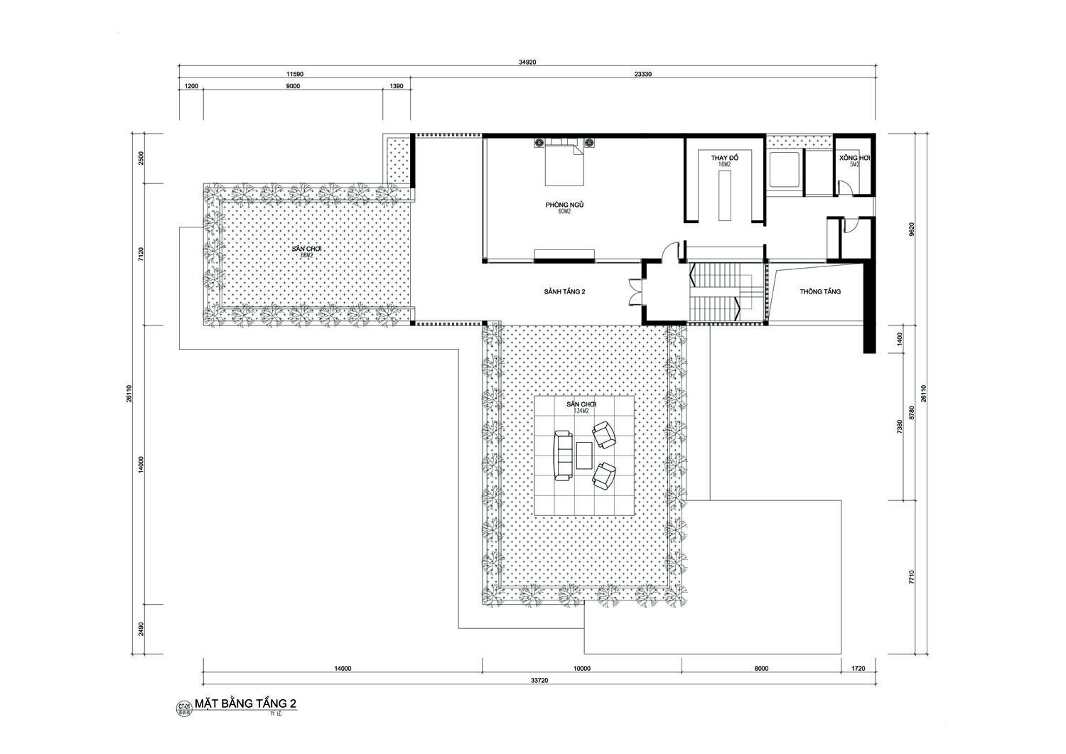
Kiến Trúc Lê xin giới thiệu đến bạn mẫu thiết kế nhà biệt thự nghỉ dưỡng đẹp được yêu thích nhất hiện nay. Mẫu thiết kế này được kiến trúc lê tư vấn thiết kế cho chủ nhân tại Hòa Bình.
(Chúng tôi sẽ gọi lại ngay sau khi bạn đăng ký)
Kiến Trúc Lê xin giới thiệu đến bạn mẫu thiết kế nhà biệt thự nghỉ dưỡng đẹp được yêu thích nhất hiện nay. Mẫu thiết kế này được kiến trúc lê tư vấn thiết kế cho chủ nhân tại Hòa Bình.






CÔNG TY TNHH KIẾN TRÚC LÊ VÀ CỘNG SỰ
♦ VPGD : P 3016 Tòa Nhà FLC Green Apartment - Số 18a Phạm Hùng - Mỹ Đình - Nam Từ Liêm - Hà Nội
♦ Hotline: 093.999.1981
♦ Zalo : 093.999.1981
♦ Website: Kientrucle.com
♦ Email: Kientruclevacongsu@gmail.com
Đây là danh sách các mẫu thiết kế nhà biệt thự đẹp nhất hiện nay của Kiến Trúc Lê. Mời bạn tham khảo
Các dự án thiết kế kiến trúc đã tư vấn triển khai cho khách hàng trên các tỉnh thành Việt Nam
.jpg)
(Điền thông tin vào form)