Kiến Trúc Lê là đơn vị chuyên thiết kế và nhận cải tạo nhà ống, nhà tập thể, nhà chung cư, nhà tầng, nhà cấp 4....cũ với mức giá rẻ nhất trên thị trường hiện nay. Hãy liên hệ với Kiến Trúc Lê nếu bạn đang có nhu cầu.
Cải tạo nhà cũ thành nhà mới đang trở thành xu hướng phổ biến được nhiều người lựa chọn. Quá trình cải tạo lại nhà cũ là một giải pháp hữu ích và nhanh gọn để nâng cấp chất lượng và không gian sống nơi ở của bạn hơn. Vì vậy nhiều gia chủ lựa chọn việc cải tạo để có thể biến ngôi nhà cũ thành căn nhà mới tinh khang trang với chi phí tiết kiệm chỉ qua việc cải tạo.

Mẫu thiết kế cải tạo nhà cũ
Khi nhu cầu thưởng thức của con người về thẩm mỹ và cái đẹp ngày càng cao. Việc thiết kế và cải tạo lại nhà ở được rất nhiều người quan tâm hơn. Nhất là đối với những người đang sở hưu hoặc sinh sông trong một ngôi nhà có tuổi đời khá lâu.
Dưới đây mời các bạn tham khảo công trình cải tạo nhà của anh Dũng tại Yên Xã được Kiến Trúc Lê thiết kế lại tạo cho ngôi nhà có diện mạo hoàn toàn mới so với kiến trúc ban đầu.

Hình ảnh công trình cải tạo nhà ở
Mời bạn tham khảo ành ảnh 3D được Kiến Trúc Lê thiết kế cho công trình trên.

Mẫu thiết kế cải tạo nhà 5 tầng

Bản vẽ cải tạo nhà 5 tầng hiện đại
Sau khi được lên thiết kế cải tạo nhà hiệu quả sẽ mang lại một không gian sống mới, lý tưởng và nâng cao chất lượng sống đẳng cấp hơn cho bạn và gia đình.
Mời bạn tham khảo một số ảnh ảnh thực tế của công trình sau khi cải tạo.

Công trình cải tạo nhà 5 tầng

Hình ảnh thực tế ngôi nhà sau cải tạo
Thực tế cho thấy sau khi cải tạo lại ngôi nhà đã được thay đổi hoàn toàn mới phần mặt tiền- bộ mặt của ngôi nhà. Không những thế ngôi nhà còn được cải tạo thay đổi thiết kế nội thất, bố trí các phòng công năng hợp lý, khoa học và phù hợp nhất với nhu cầu sử dụng của gia chủ.

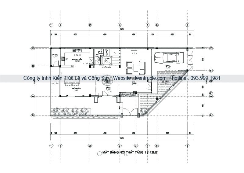
Bản vẽ tổng thể tầng 1

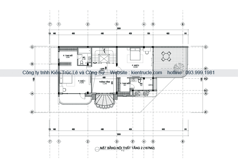
Bản vẽ tổng thể tầng 2

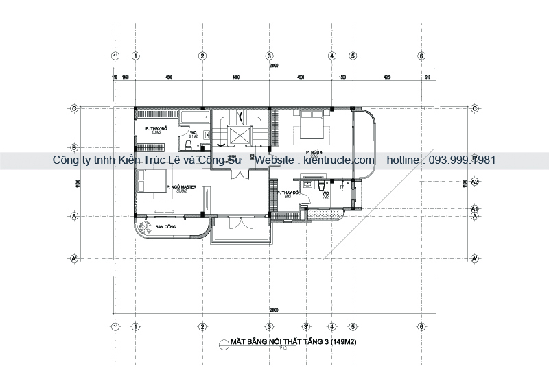
Bản vẽ tổng thể tầng 3

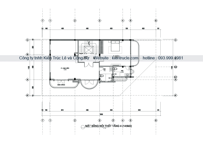
Bản vẽ tổng thể tầng 4

Hình ảnh toàn bộ công trình cải tạo
Các bạn thân mến. Kiến Trúc Lê còn rất nhiều các mẫu thiết kế cải tạo nhà đẹp trong kho dữ liệu mà chúng tôi đã tư vấn thiết kế cho khách hàng của mình thời gian vừa qua. Vì chúng tôi chưa kịp cập nhật lên website để giới thiệu cùng các bạn. Hãy thường xuyên ghé thăm website https://kientrucle.com/index.php của chúng tôi nhé.
Nếu bạn muốn tư vấn thiết kế nhà hay cải tạo nhà cũ hãy liên hệ ngay với Kiến Trúc Lê để được đơn vị chúng tôi tư vấn cho bạn một cách chuyên nghiệp nhất bạn nhé.
CÔNG TY TNHH KIẾN TRÚC LÊ VÀ CỘNG SỰ
♦ VPGD : P 3016 Tòa Nhà FLC Green Apartment - Số 18a Phạm Hùng - Mỹ Đình - Nam Từ Liêm - Hà Nội
♦ Hotline: 093.999.1981
♦ Zalo : 093.999.1981
♦ Website: Kientrucle.com
♦ Email: Kientruclevacongsu@gmail.com
Kiến Trúc Lê xin chia sẻ đến bạn những mẫu nhà nhỏ có diện tích trên dưới 100m2,được thiết kế tối ưu, không gian bố trí thông minh, đẹp mắt, có sân vườn. Mời các bạn tham khảo.
Kiến Trúc Lê mời bạn tham khảo mẫu thiết kế phòng ngủ cho bé gái đẹp hiện đại, sang trọng năm 2025.
Mời bạn tham khảo mẫu thiết kế phòng cho thuê, kết hợp kinh doanh đẹp được Kiến Trúc Lê thiết kế với phong cách hiện đại, đầy đủ công năng. Hy vọng sẽ có thêm ý tưởng cho kế hoạch xây dựng căn nhà của bạn.
Thông tin giới thiệu các mẫu thiết kế khách sạn mini đẹp đạt chuẩn 5 sao của Kiến Trúc Lê. Mời các bạn đọc cùng chiêm ngưỡng toàn bộ công trình khách sạn qua bài viết này nhé.
Thông tin giới thiệu mẫu thiết kế biệt thự nghỉ dưỡng của Kiến Trúc Lê. Được thiết kế với không gian sống mở và gần gũi với thiên nhiên. Mời các bạn đọc cùng chiêm ngưỡng toàn bộ công trình qua bài viết này nhé.
Kiến Trúc Lê xin giới thiệu đến bạn mẫu thiết kế nhà 2 tầng 80m2 mái thái đẹp, chi phí xây dựng thấp. Đây là mẫu nhà đẹp được yêu thích nhất, Bởi diện tích xây dựng vừa phải phù hợp với nhu cầu sử dụng của nhiều gia đình.
Kiến Trúc Lê là đơn vị chuyên nghiệp tại Hà Nội trong lĩnh vực thiết kế kiến trúc nhà ở. Bài viết này chúng tôi xin tổng hợp những mẫu thiết kế phòng khách đẹp hiện đại, sang trọng năm 2025. Mời các bạn tham khảo.
Kiến Trúc Lê là đơn vị chuyên nghiệp tại Hà Nội trong lĩnh vực thiết kế kiến trúc nhà ở. Đây là những hồ sơ dự án thiết kế mẫu nhà phố 3 tầng hiện đại đẹp 2025 được đơn vị chúng tôi thiết kế cho khách hàng của mình trong thời gian qua. Mời các bạn cùng tham khảo.
Kiến Trúc Lê là đơn vị chuyên nghiệp hàng đầu tại Hà Nội trong lĩnh vực tư vấn thiết kế kiến trúc nhà, biệt thự đẹp nhất hiện nay. Đây là các mẫu thiết kế nhà cấp 4 đẹp hiện đại được chúng tôi tư vấn thiết kế cho khách hàng mới nhất 2025. Mời các bạn tham khảo.
Chi tiết các mẫu nhà phố đẹp hiện đại xu hướng mới nhất 2025. Nếu bạn đang có nhu cầu thiết kế nhà lô phố thì hãy tham khảo ngay những mẫu nhà phố hiện đại 4 tầng của Kiến Trúc Lê để lựa chọn được mẫu nhà ưng ý cho gia đình mình nhé.
Kiến Trúc Lê là đơn vị chuyên nghiệp tại Hà Nội trong lĩnh vực thiết kế kiến trúc nhà ở. Đây là hồ sơ thiết kế mẫu nhà 2 tầng mái nhật đẹp 2025 được đơn vị chúng tôi thiết kế cho khách hàng xây dựng. Chúng tôi chuyên nhận thiết kế nhà phố, biệt thự, khách sạn,... Mời các bạn cùng tham khảo.
Thông tin về các bản vẽ thiết kế mẫu nhà 2 tần siêu đẹp, với đầy đủ công năng của Kiến Trúc Lê. Nếu bạn đang có nhu cầu tư vấn thiết kế nhà 2 tầng thì hay tham khảo ngay bài viết nhé.
Bài viết tổng hợp các bản vẽ thiết kế nội thất nhà bếp, phòng ăn đẹp, hiện đại được đội ngũ kiến trúc sư của Kiến Trúc Lê thiết kế cho khách hàng của mình và được đánh giá cao về tính thẩm mỹ và khoa học.
Kiến Trúc Lê xin chia sẻ giới thiệu đến bạn mẫu thiết kế kiến trúc khách sạn tiêu chuẩn 3 sao 7 tầng mang phong cách kiến trúc xanh xu hướng của tương lai. Mời các bạn tham khảo bản vẽ khách sạn hiện đại 3 sao.
Kiến Trúc Lê là đơn vị chuyên nghiệp tại Hà Nội trong lĩnh vực thiết kế kiến trúc nhà ở. Chúng tôi chuyên nhận thiết kế nhà ở, biệt thự, khách sạn, văn phòng.... Mời các bạn cùng tham khảo những mẫu nhà thiết kế tiết kiệm chi phí xây dựng nhất 2024 đang được nhiều gia chủ lựa chọn xây dựng.
Kiến Trúc Lê là đơn vị chuyên nghiệp tại Hà Nội trong lĩnh vực thiết kế kiến trúc nhà ở. Bài viết này chúng tôi xin tổng hợp các mẫu thiết kế phòng ngủ đẹp hiện đại, sang trọng năm 2024. Mời các bạn tham khảo.
Bài viết này Kiến Trúc Lê xin chia sẻ đến bạn các phong cách thiết kế nhà văn phòng công ty đẹp hiện đại say đắm lòng người và hợp phong thủy. Mời các bạn tham khảo để có ý tưởng cho không gian văn phòng làm việc của mình nhé.
Kiến Trúc Lê xin tổng hợp chia sẻ cùng bạn các mẫu thiết kế nhà biệt thự 150m2 đẹp mới nhất hiện nay. Mời bạn tham khảo.
Kiến Trúc Lê xin chia sẻ cùng bạn những mẫu thiết kế nhà biệt thự đẹp mạng phong cách kiến trúc hiện đại được yêu thích 2023. Mời bạn tham khảo.
Kiến Trúc Lê mời bạn tham khảo các mẫu thiết kế kiến trúc nhà ở đẹp mới nhất năm 2023 do đơn vị chúng tôi tư vấn thiết kế cho khách hàng của mình thời gian vừa qua cuối 2022 và đầu 2023
Đây là danh sách các mẫu thiết kế nhà biệt thự đẹp nhất hiện nay của Kiến Trúc Lê. Mời bạn tham khảo
Các dự án thiết kế kiến trúc đã tư vấn triển khai cho khách hàng trên các tỉnh thành Việt Nam
.jpg)
(Điền thông tin vào form)