Mời bạn tham khảo mẫu thiết kế phòng cho thuê, kết hợp kinh doanh đẹp được Kiến Trúc Lê thiết kế với phong cách hiện đại, đầy đủ công năng, tiện ích. Hy vọng sẽ có thêm ý tưởng cho kế hoạch xây dựng căn nhà của bạn.
Bạn đang có ý định xây dựng một căn nhà để cho thuê, bạn hay tham khảo ngay mẫu thiết kế căn hộ cho thuê đẹp trông như mô hình chung cư mini tạo nên không gian tiện nghi, có tính thẩm mỹ cao và đáp ứng được nhu cầu sinh hoạt của người ở trọ.

Mẫu thiết kế phòng cho thuê

Bản vẽ mẫu nhà trọ cho thuê
Hiện nay, tại các thành phố lớn, gia chủ thường có thiên hướng tận dụng đối đa số quỹ đất mà mình có để có thể thu về các nguồn thu nhập thụ động hàng tháng. Nên các mẫu nhà xây cho thuê hay còn gọi là chung cư mini được nhiều gia chủ quan tâm. Với mô hình này các căn hộ cho thuê có không gian sông riêng biệt, các phòng được bố trí đầy đủ tiện ích, công năng đáp ứng được nhu cầu sinh hoạt của người thuê ở.

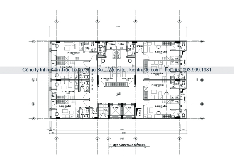
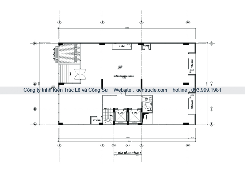
Mẫu thiết kế mặt bằng nhà cho thuê

Bản vẽ mặt bằng nhà cho thuê

Mẫu chung cư mini cho thuê trọ
Các bạn thân mến. Kiến Trúc Lê còn rất nhiều các mẫu thiết kế nhà đẹp trong kho dữ liệu mà chúng tôi đã tư vấn thiết kế cho khách hàng của mình thời gian vừa qua. Vì chúng tôi chưa kịp cập nhật lên website để giới thiệu cùng các bạn. Hãy thường xuyên ghé thăm website https://kientrucle.com/index.php của chúng tôi nhé.
Nếu bạn muốn tư vấn thiết kế nhà cho thuê đẹp hãy liên hệ ngay với Kiến Trúc Lê để được đơn vị chúng tôi tư vấn cho bạn một cách chuyên nghiệp nhất bạn nhé.
CÔNG TY TNHH KIẾN TRÚC LÊ VÀ CỘNG SỰ
♦ VPGD : P 3016 Tòa Nhà FLC Green Apartment - Số 18a Phạm Hùng - Mỹ Đình - Nam Từ Liêm - Hà Nội
♦ Hotline: 093.999.1981
♦ Zalo : 093.999.1981
♦ Website: Kientrucle.com
♦ Email: Kientruclevacongsu@gmail.com
Kiến Trúc Lê xin chia sẻ đến bạn những mẫu nhà nhỏ có diện tích trên dưới 100m2,được thiết kế tối ưu, không gian bố trí thông minh, đẹp mắt, có sân vườn. Mời các bạn tham khảo.
Kiến Trúc Lê mời bạn tham khảo mẫu thiết kế phòng ngủ cho bé gái đẹp hiện đại, sang trọng năm 2025.
Cải tạo nhà cũ là việc nâng cấp chất lượng, mở rộng diện tích hoặc điều chỉnh kết cấu ngôi nhà, bố trí lại một số khu vực trong nhà nhằm thay đổi không gian và diện mạo hoàn toàn mới cho ngôi nhà cũ. Hãy liên hệ với Kiến Trúc Lê nếu bạn đang có nhu cầu thiết kế hay cải tạo ngôi nhà của mình nhé.
Thông tin giới thiệu các mẫu thiết kế khách sạn mini đẹp đạt chuẩn 5 sao của Kiến Trúc Lê. Mời các bạn đọc cùng chiêm ngưỡng toàn bộ công trình khách sạn qua bài viết này nhé.
Thông tin giới thiệu mẫu thiết kế biệt thự nghỉ dưỡng của Kiến Trúc Lê. Được thiết kế với không gian sống mở và gần gũi với thiên nhiên. Mời các bạn đọc cùng chiêm ngưỡng toàn bộ công trình qua bài viết này nhé.
Kiến Trúc Lê xin giới thiệu đến bạn mẫu thiết kế nhà 2 tầng 80m2 mái thái đẹp, chi phí xây dựng thấp. Đây là mẫu nhà đẹp được yêu thích nhất, Bởi diện tích xây dựng vừa phải phù hợp với nhu cầu sử dụng của nhiều gia đình.
Kiến Trúc Lê là đơn vị chuyên nghiệp tại Hà Nội trong lĩnh vực thiết kế kiến trúc nhà ở. Bài viết này chúng tôi xin tổng hợp những mẫu thiết kế phòng khách đẹp hiện đại, sang trọng năm 2025. Mời các bạn tham khảo.
Kiến Trúc Lê là đơn vị chuyên nghiệp tại Hà Nội trong lĩnh vực thiết kế kiến trúc nhà ở. Đây là những hồ sơ dự án thiết kế mẫu nhà phố 3 tầng hiện đại đẹp 2025 được đơn vị chúng tôi thiết kế cho khách hàng của mình trong thời gian qua. Mời các bạn cùng tham khảo.
Kiến Trúc Lê là đơn vị chuyên nghiệp hàng đầu tại Hà Nội trong lĩnh vực tư vấn thiết kế kiến trúc nhà, biệt thự đẹp nhất hiện nay. Đây là các mẫu thiết kế nhà cấp 4 đẹp hiện đại được chúng tôi tư vấn thiết kế cho khách hàng mới nhất 2025. Mời các bạn tham khảo.
Chi tiết các mẫu nhà phố đẹp hiện đại xu hướng mới nhất 2025. Nếu bạn đang có nhu cầu thiết kế nhà lô phố thì hãy tham khảo ngay những mẫu nhà phố hiện đại 4 tầng của Kiến Trúc Lê để lựa chọn được mẫu nhà ưng ý cho gia đình mình nhé.
Kiến Trúc Lê là đơn vị chuyên nghiệp tại Hà Nội trong lĩnh vực thiết kế kiến trúc nhà ở. Đây là hồ sơ thiết kế mẫu nhà 2 tầng mái nhật đẹp 2025 được đơn vị chúng tôi thiết kế cho khách hàng xây dựng. Chúng tôi chuyên nhận thiết kế nhà phố, biệt thự, khách sạn,... Mời các bạn cùng tham khảo.
Thông tin về các bản vẽ thiết kế mẫu nhà 2 tần siêu đẹp, với đầy đủ công năng của Kiến Trúc Lê. Nếu bạn đang có nhu cầu tư vấn thiết kế nhà 2 tầng thì hay tham khảo ngay bài viết nhé.
Bài viết tổng hợp các bản vẽ thiết kế nội thất nhà bếp, phòng ăn đẹp, hiện đại được đội ngũ kiến trúc sư của Kiến Trúc Lê thiết kế cho khách hàng của mình và được đánh giá cao về tính thẩm mỹ và khoa học.
Kiến Trúc Lê xin chia sẻ giới thiệu đến bạn mẫu thiết kế kiến trúc khách sạn tiêu chuẩn 3 sao 7 tầng mang phong cách kiến trúc xanh xu hướng của tương lai. Mời các bạn tham khảo bản vẽ khách sạn hiện đại 3 sao.
Kiến Trúc Lê là đơn vị chuyên nghiệp tại Hà Nội trong lĩnh vực thiết kế kiến trúc nhà ở. Chúng tôi chuyên nhận thiết kế nhà ở, biệt thự, khách sạn, văn phòng.... Mời các bạn cùng tham khảo những mẫu nhà thiết kế tiết kiệm chi phí xây dựng nhất 2024 đang được nhiều gia chủ lựa chọn xây dựng.
Kiến Trúc Lê là đơn vị chuyên nghiệp tại Hà Nội trong lĩnh vực thiết kế kiến trúc nhà ở. Bài viết này chúng tôi xin tổng hợp các mẫu thiết kế phòng ngủ đẹp hiện đại, sang trọng năm 2024. Mời các bạn tham khảo.
Bài viết này Kiến Trúc Lê xin chia sẻ đến bạn các phong cách thiết kế nhà văn phòng công ty đẹp hiện đại say đắm lòng người và hợp phong thủy. Mời các bạn tham khảo để có ý tưởng cho không gian văn phòng làm việc của mình nhé.
Kiến Trúc Lê xin tổng hợp chia sẻ cùng bạn các mẫu thiết kế nhà biệt thự 150m2 đẹp mới nhất hiện nay. Mời bạn tham khảo.
Kiến Trúc Lê xin chia sẻ cùng bạn những mẫu thiết kế nhà biệt thự đẹp mạng phong cách kiến trúc hiện đại được yêu thích 2023. Mời bạn tham khảo.
Kiến Trúc Lê mời bạn tham khảo các mẫu thiết kế kiến trúc nhà ở đẹp mới nhất năm 2023 do đơn vị chúng tôi tư vấn thiết kế cho khách hàng của mình thời gian vừa qua cuối 2022 và đầu 2023
Đây là danh sách các mẫu thiết kế nhà biệt thự đẹp nhất hiện nay của Kiến Trúc Lê. Mời bạn tham khảo
Các dự án thiết kế kiến trúc đã tư vấn triển khai cho khách hàng trên các tỉnh thành Việt Nam
.jpg)
(Điền thông tin vào form)