Quan tâm: 26863
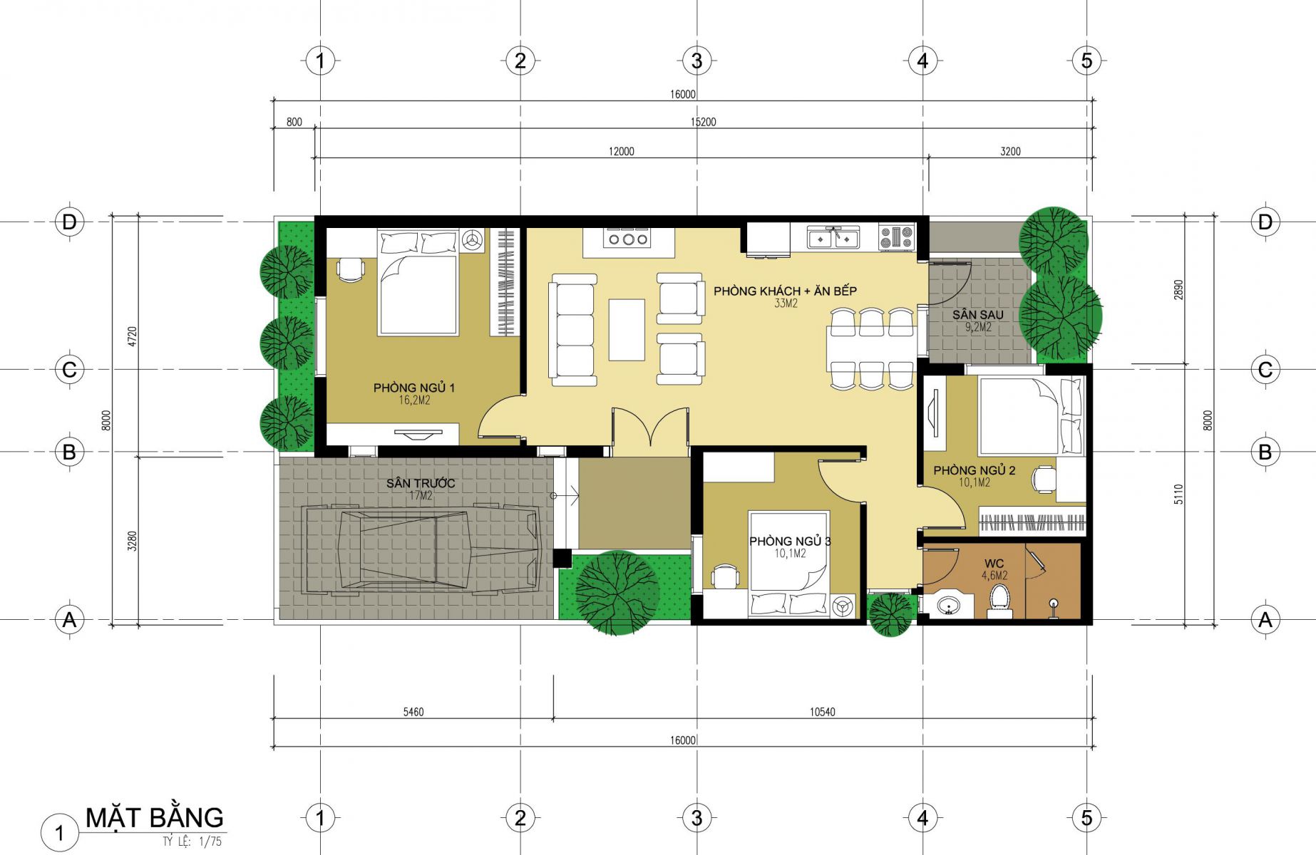
Kiến Trúc Lê xin giới thiệu đến bạn đây là mẫu thiết kế nhà biệt thự 1 tầng mái thái bố trí 3 phòng ngủ đẹp được yêu thích.
(Chúng tôi sẽ gọi lại ngay sau khi bạn đăng ký)
Kiến Trúc Lê xin giới thiệu đến bạn đây là mẫu thiết kế nhà biệt thự 1 tầng mái thái bố trí 3 phòng ngủ đẹp được yêu thích.




CÔNG TY TNHH KIẾN TRÚC LÊ VÀ CỘNG SỰ
♦ VPGD : P 3016 Tòa Nhà FLC Green Apartment - Số 18a Phạm Hùng - Mỹ Đình - Nam Từ Liêm - Hà Nội
♦ Hotline: 093.999.1981
♦ Zalo : 093.999.1981
♦ Website: Kientrucle.com
♦ Email: Kientruclevacongsu@gmail.com
Đây là danh sách các mẫu thiết kế nhà biệt thự đẹp nhất hiện nay của Kiến Trúc Lê. Mời bạn tham khảo
Các dự án thiết kế kiến trúc đã tư vấn triển khai cho khách hàng trên các tỉnh thành Việt Nam
.jpg)
(Điền thông tin vào form)