Quan tâm: 6416
Kiến Trúc Lê đơn vị hàng đầu về tư vấn thiết kế kiến trúc tại Hà Nội. Đây là mẫu thiết kế nhà biệt thự 2 tầng mái thái diện tích 150m2 mặt sàn mà chúng tôi đã thiết kế cho khách hàng thời gian vừa qua.
(Chúng tôi sẽ gọi lại ngay sau khi bạn đăng ký)
Biệt thự 2 tầng mái Thái 150m2 là một trong những mẫu thiết kế đang được ưa chuộng tại Việt Nam hiện nay. Với sự kết hợp hoàn hảo giữa yếu tố hiện đại và cổ điển, biệt thự mái Thái mang đến không gian sống sang trọng, đẳng cấp và vô cùng thoải mái cho gia đình. Trong bài viết này, chúng tôi sẽ giới thiệu chi tiết về mẫu biệt thự 2 tầng mái Thái 150m2, bao gồm các yếu tố quan trọng khi thiết kế, các ưu điểm của loại hình biệt thự này, và tại sao bạn nên lựa chọn Kiến Trúc Lê cho công trình của mình.

Hồ sơ thiết kế kiến trúc nhà 2 tầng 150m2 mái thái đẹp
Biệt thự mái Thái không chỉ nổi bật với vẻ đẹp thanh thoát, tinh tế mà còn mang lại nhiều lợi ích thực tế cho gia chủ. Vậy, tại sao mẫu thiết kế này lại được ưa chuộng?

Biệt thự 2 tầng tân cổ điển đẹp mái thái
Biệt thự 2 tầng mái Thái 150m2 mang đến nhiều lợi ích cho gia chủ, đặc biệt là những gia đình yêu thích không gian sống thoải mái nhưng vẫn giữ được vẻ đẹp hiện đại, sang trọng:

Các mẫu nhà biệt thự 2 tầng mái thái đẹp
Khi thiết kế biệt thự 2 tầng mái Thái 150m2, có một số yếu tố quan trọng cần lưu ý để đảm bảo sự hoàn hảo trong thiết kế và tính thẩm mỹ cao: Công năng sử dụng: Một biệt thự đẹp không chỉ đẹp về mặt thẩm mỹ mà còn phải đáp ứng đầy đủ các nhu cầu sử dụng của gia đình. Từ phòng khách, phòng bếp đến các phòng ngủ đều cần được phân bổ hợp lý. Chất liệu xây dựng: Việc lựa chọn chất liệu xây dựng cũng rất quan trọng. Các vật liệu như gạch, sơn, kính và gỗ cần được chọn lựa kỹ càng để đảm bảo sự bền vững và tính thẩm mỹ cao. Phong thủy: Phong thủy trong thiết kế biệt thự 2 tầng mái Thái cần phải được xem xét kỹ lưỡng, nhằm mang lại tài lộc, sức khỏe và bình an cho gia chủ.

Mẫu nhà 2 tầng 10x15m mái thái đẹp
Dưới đây là một số mẫu thiết kế biệt thự 2 tầng mái Thái 150m2 đẹp, sang trọng và phù hợp với xu hướng hiện đại:

Mẫu biệt thự 2 tầng mái thái đẹp
Khi lựa chọn Kiến Trúc Lê cho dự án thiết kế biệt thự của bạn, quy trình làm việc của chúng tôi được thực hiện một cách chuyên nghiệp và khoa học: Khảo sát hiện trạng và tư vấn miễn phí: Đầu tiên, chúng tôi sẽ khảo sát khu đất của bạn và lắng nghe yêu cầu, mong muốn của gia chủ về thiết kế. Lên ý tưởng thiết kế: Sau khi thu thập đầy đủ thông tin, các kiến trúc sư của chúng tôi sẽ đưa ra những phương án thiết kế phù hợp với nhu cầu và ngân sách của bạn. Hoàn thiện bản vẽ thiết kế: Sau khi thống nhất với gia chủ, chúng tôi sẽ hoàn thiện bản vẽ thiết kế chi tiết, bao gồm phối cảnh 3D và bản vẽ kỹ thuật. Giám sát thi công: Kiến Trúc Lê cũng cung cấp dịch vụ giám sát thi công để đảm bảo rằng công trình được xây dựng đúng tiến độ và chất lượng.

Mẫu biệt thự 2 tầng mái thái 150m2 đẹp
Đội ngũ kiến trúc sư chuyên nghiệp: Với đội ngũ kiến trúc sư giàu kinh nghiệm, chúng tôi cam kết mang đến những thiết kế sáng tạo và chất lượng cao.

Mẫu nhà biệt thự 2 tầng đẹp tân cổ điển

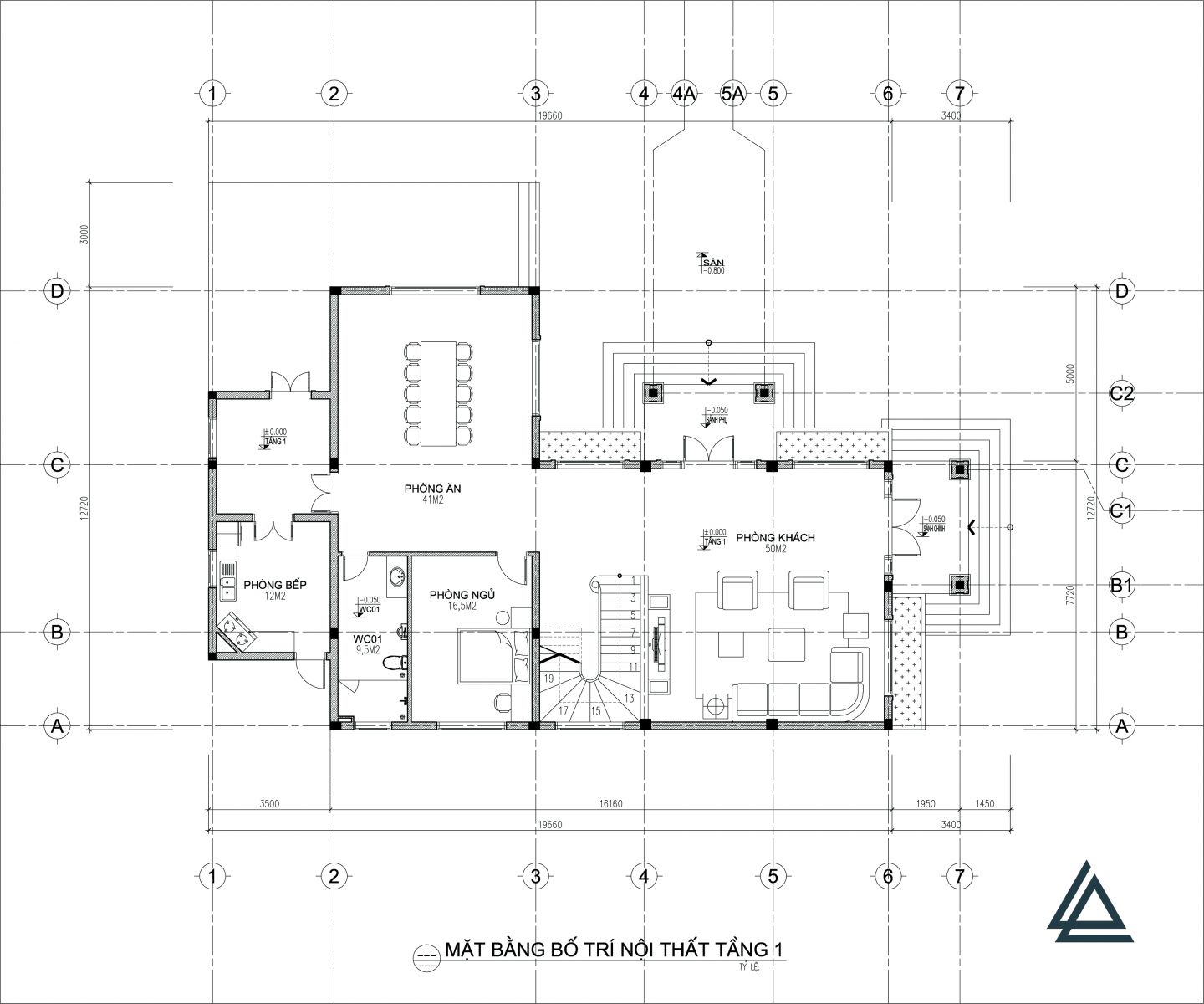
Mặt bằng tầng 1

Mặt bằng tầng 2
Thiết kế biệt thự 2 tầng mái Thái 150m2 là sự lựa chọn lý tưởng cho những gia đình muốn sở hữu một không gian sống sang trọng, hiện đại và thoải mái. Với đội ngũ kiến trúc sư giàu kinh nghiệm, Kiến Trúc Lê tự hào mang đến cho khách hàng những giải pháp thiết kế tối ưu, phù hợp với nhu cầu và mong muốn của từng gia chủ. Liên hệ với chúng tôi ngay hôm nay để bắt đầu xây dựng biệt thự mơ ước của bạn!
CÔNG TY TNHH KIẾN TRÚC LÊ VÀ CỘNG SỰ
♦ VPGD : P 3016 Tòa Nhà FLC Green Apartment - Số 18a Phạm Hùng - Mỹ Đình - Nam Từ Liêm - Hà Nội
♦ Hotline: 093.999.1981
♦ Zalo : 093.999.1981
♦ Website: Kientrucle.com
♦ Email: Kientruclevacongsu@gmail.com
Đây là danh sách các mẫu thiết kế nhà biệt thự đẹp nhất hiện nay của Kiến Trúc Lê. Mời bạn tham khảo
Các dự án thiết kế kiến trúc đã tư vấn triển khai cho khách hàng trên các tỉnh thành Việt Nam
.jpg)
(Điền thông tin vào form)