Quan tâm: 10342
Kiến Trúc Lê xin giới thiệu cùng bạn mẫu thiết kế nhà biệt thự 2 tầng 10x12m mái thái đẹp được yêu thích. Mời bạn tham khảo làm ý tưởng thiết kế cho ngôi nhà mới của mình.
(Chúng tôi sẽ gọi lại ngay sau khi bạn đăng ký)
Kiến Trúc Lê xin giới thiệu cùng bạn mẫu thiết kế nhà biệt thự 2 tầng 10x12m mái thái đẹp được yêu thích. Mời bạn tham khảo làm ý tưởng thiết kế cho ngôi nhà mới của mình.
Bạn đang có ý định xây nhà. Bạn đang vào mạng internet để tìm cho mình một mẫu thiết kế nhà 2 tầng đẹp làm ý tưởng cho ngôi nhà của mình. Kiến Trúc Lê xin chia sẻ giới thiệu cùng bạn mẫu thiết kế nhà 2 tầng 10x12m đẹp do công ty chúng tôi mới tư vấn thiết kế cho khách hàng của mình trong thời gian qua. Hy vọng mẫu thiết kế nhà 2 tầng 120m2 đẹp này góp phần vào việc tạo ra ý tưởng tuyệt vời cho ngôi nhà bạn.
Kiến Trúc Lê là đơn vị hàng đầu tại Hà Nội hiện nay trong lĩnh vực tư vấn thiết kế kiến trúc nhà ở theo từng ý tưởng riêng biệt của mỗi khách hàng. Toàn bộ mẫu thiết kế nhà đẹp của Kiến Trúc Lê đều được lấy từ ý tưởng riêng, từ nhu cầu công năng sử dụng riêng của mỗi khách hàng và tạo ra một ngôi nhà phù hợp nhất với nhu cầu sử dụng.
Điều đặc biệt hơn cả ở Kiến Trúc Lê so với các đơn vị tư vấn kiến trúc khách là đội ngũ Kiến trúc sư của chúng tôi đồng thời cũng là những chuyên gia hàng đầu về tư vấn phong thủy tại Hà Nội. Tất cả mẫu thiết kế nhà đẹp do Kiến Trúc Lê tư vấn thiết kế cho khách hàng của mình đều được tính toán kỹ lưỡng theo phong thủy, theo tuổi của khách hàng. Tài lộc, may mắn, sức khỏe luôn đến với bạn khi ngôi nhà của bạn đẹp và hợp tuổi với bạn và gia đình. Đó là mục tiêu phát triển bền vững của Kiến Trúc Lê chúng tôi.
Dưới đây là hình ảnh 3d mẫu thiết kế nhà 2 tầng diện tích 10x12m đẹp được chúng tôi tư vấn và thiết kế cho khách hàng của mình, mời bạn cùng tham khảo nhé.

Mẫu biệt thự 2 tầng 10x12m

Mẫu nhà 2 tầng 10x12m mái thái

Mẫu nhà 2 tầng 10x12m đẹp

Mẫu nhà đẹp 2 tầng 10x12m

Thiết kế nhà 2 tầng 10x12m

Bản vẽ bố trí mặt bằng công năng tầng 1 nhà 2 tầng 10x12m

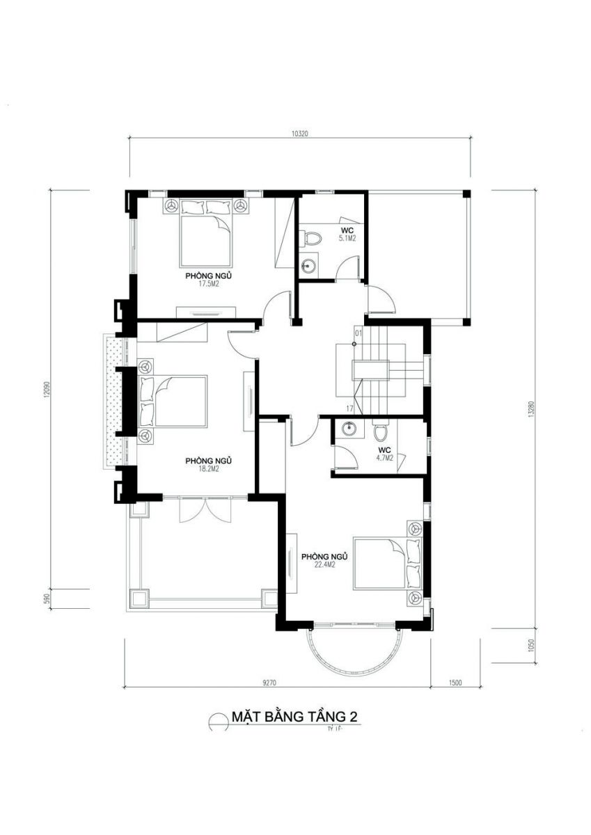
Bản vẽ bố trí mặt bằng công năng tầng 2 nhà 2 tầng 10x12m

Bản vẽ bố trí phong thủy mặt bằng công năng tầng 1 nhà 2 tầng 10x12m

Bản vẽ bố trí phong thủy mặt bằng công năng tầng 1 nhà 2 tầng 10x12m
Các bạn thân mến. Bạn vừa tham khảo mẫu thiết kế nhà 2 tầng 10x12m mái thái đẹp của Kiến Trúc Lê. Nếu bạn thấy ưng ý với mẫu thiết kế nhà 2 tầng đẹp này vui lòng liên hệ với chúng tôi để được tư vấn thiết kế một cách bài bản nhất.
CÔNG TY TNHH KIẾN TRÚC LÊ VÀ CỘNG SỰ
♦ VPGD : P 3016 Tòa Nhà FLC Green Apartment - Số 18a Phạm Hùng - Mỹ Đình - Nam Từ Liêm - Hà Nội
♦ Hotline: 093.999.1981
♦ Zalo : 093.999.1981
♦ Website: Kientrucle.com
♦ Email: Kientruclevacongsu@gmail.com
Đây là danh sách các mẫu thiết kế nhà biệt thự đẹp nhất hiện nay của Kiến Trúc Lê. Mời bạn tham khảo
Các dự án thiết kế kiến trúc đã tư vấn triển khai cho khách hàng trên các tỉnh thành Việt Nam
.jpg)
(Điền thông tin vào form)