Quan tâm: 21537
Kiến Trúc Lê xin giới thiệu đến bạn mẫu thiết kế nhà 2 tầng 9x15m mái thái đẹp được chúng tôi tư vấn thiết kế cho khách hàng của mình thời gian qua. Mời bạn tham khảo làm ý tưởng cho ngôi nhà của mình nhé.
(Chúng tôi sẽ gọi lại ngay sau khi bạn đăng ký)
Kiến Trúc Lê xin giới thiệu đến bạn mẫu thiết kế nhà 2 tầng 9x15m mái thái đẹp được chúng tôi tư vấn thiết kế cho khách hàng của mình thời gian qua. Mời bạn tham khảo làm ý tưởng cho ngôi nhà của mình nhé.
Bạn đang có ý định xây nhà 2 tầng mái thái. Bạn đang vào mạng internet tham khảo cho mình mẫu thiết kế nhà 2 tầng đẹp làm ý tưởng cho mẫu nhà của mình. Kiến Trúc Lê mời bạn tham khảo mẫu nhà 2 tầng 9x15m mái thái đẹp do chúng tôi tư vấn thiết kế cho khách hàng của mình thời gian qua. Hy vọng mẫu nhà 2 tầng diện tích 9x15m 2 mặt tiền đẹp này sẽ góp phần xây nên ý tưởng thiết kế cho ngôi nhà của bạn.
Kiến Trúc Lê là đơn vị tư vấn thiết kế kiến trúc nhà ở theo ý tưởng riêng của khách hàng hàng đầu Việt Nam ngày nay. Chúng tôi có trụ sở chính tại Hà Nội và hoạt động tư vấn thiết kế nhà đẹp cho mọi khách hàng trên tất cả các tỉnh thành Việt Nam.
Nhận được yêu cầu tư vấn thiết kế của một gia chủ ở Yên Bai. Muốn thiết kế một mẫu nhà 2 tầng với diện tích từ 120 đến 140m2. Với công năng sử dụng là bố trí được 4 phòng ngủ rộng rãi. 1 Phòng khách, 1 phòng ăn kết hợp bếp ăn. Bố trí nhà theo phong cách kiến trúc hiện đại mới nhất ngày nay.
Từ thông tin này mà Kiến Trúc Lê đã lên bản vẽ 3d gửi đến khách hàng và nhận được sự yêu thích từ phía khách hàng và tiến hành cho xây dựng ngay trong thời gian tới. Mời bạn xem hình ảnh 3d mẫu nhà 2 tầng 9x15m mái thái đẹp này.

Mẫu nhà 2 tầng 9x15m mái thái

Mẫu nhà đẹp 9x15m mái thái

Nhà 2 tầng 9x15m đẹp
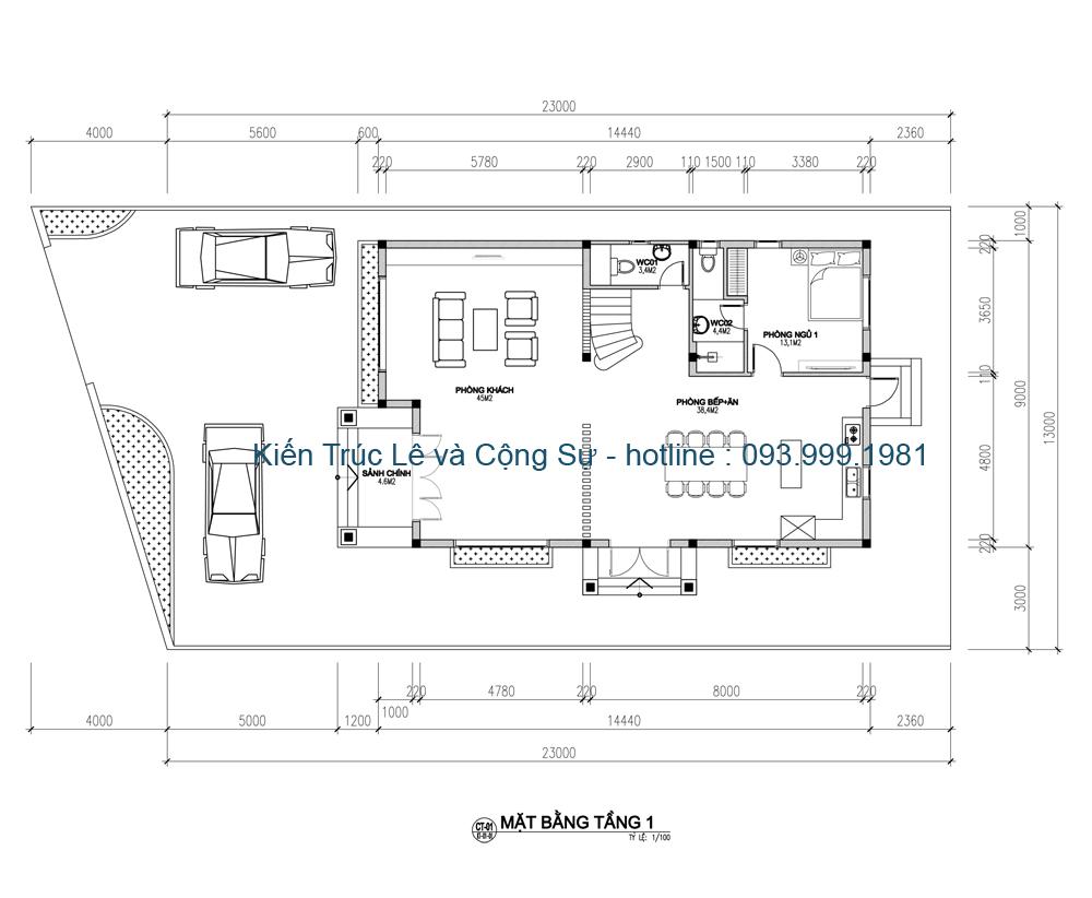
Mời bạn xem hình ảnh chi tiết bố trí công năng sử dụng tầng 1 của ngôi nhà 2 tầng 9x15m đẹp này nhé.

Bản vẽ nhà 2 tầng 9x15m đẹp
Dưới đây là hình ảnh bố trí công năng sử dụng tầng 2 của mẫu thiết kế nhà 2 tầng diện tích xây dựng là 9x15m đẹp mời bạn tham khảo.

Thiết kế nhà 2 tầng 9x15m đẹp
Các bạn thân mến. Nếu bạn muốn xây nhà 2 tầng đẹp theo mẫu thiết kế trên. Dù nhu cầu của bạn giống hay khác mẫu nhà này, dù diện tích bạn muốn xây dựng lớn hay nhỏ hơn. Hãy Liên hệ để được Kiến Trúc Lê tư vấn chi tiết hơn cho bạn nhé.
CÔNG TY TNHH KIẾN TRÚC LÊ VÀ CỘNG SỰ
♦ VPGD : P 3016 Tòa Nhà FLC Green Apartment - Số 18a Phạm Hùng - Mỹ Đình - Nam Từ Liêm - Hà Nội
♦ Hotline: 093.999.1981
♦ Zalo : 093.999.1981
♦ Website: Kientrucle.com
♦ Email: Kientruclevacongsu@gmail.com
Đây là danh sách các mẫu thiết kế nhà biệt thự đẹp nhất hiện nay của Kiến Trúc Lê. Mời bạn tham khảo
Các dự án thiết kế kiến trúc đã tư vấn triển khai cho khách hàng trên các tỉnh thành Việt Nam
.jpg)
(Điền thông tin vào form)