Quan tâm: 26970
Kiến Trúc Lê xin chia sẻ giới thiệu đến bạn đây là mẫu thiết kế kiến trúc nhà biệt thự vườn 2 tầng diện tích sàn 200m2 mái thái đẹp vừa được Kiến Trúc Lê tư vấn thiết kế cho khách hàng của mình ở tại Quảng Bình.
(Chúng tôi sẽ gọi lại ngay sau khi bạn đăng ký)
Kiến Trúc Lê xin chia sẻ giới thiệu đến bạn đây là mẫu thiết kế kiến trúc nhà biệt thự vườn 2 tầng diện tích sàn 200m2 mái thái đẹp vừa được Kiến Trúc Lê tư vấn thiết kế cho khách hàng của mình ở tại Quảng Bình.
Bạn đang có một mảnh đất rộng rãi và đang muốn xây nhà biệt thự 2 tầng mái thái đẹp. Bạn đang vào mạng tham khảo một mẫu thiết kế nhà 2 tầng đẹp để làm ý tưởng cho ngôi nhà tương lai của mình. Bạn đang chưa biết mình chọn phong cách thiết kế nào cho phù hợp với ngôi nhà của mình và chi phí xây dựng lại hợp lý, hợp với số tiền bạn muốn đầu tư.
Kiến Trúc Lê xin chia sẻ và mời bạn tham khảo mẫu nhà biệt thự 2 tầng 200m2 mái thái đẹp được chúng tôi mới tư vấn thiết kế theo ý tưởng của khách hàng tại Quảng Bình. Hy vọng mẫu nhà 2 tầng diện tích 200m2 sàn này sẽ làm ý tưởng tuyệt vời cho ngôi nhà sắp xây của bạn.
Ngày nay cùng với sự phát triển không ngừng của nền kinh tế thị trường và nhu cầu về việc xây nhà ở của người dân trên mọi miền tổ quốc ngày một tăng cao. Cũng như trong cuộc sống, nhu cầu ăn ngon mặc đẹp khi kinh tế phát triển thì việc nhà ở cũng vậy. Nhà ở phải được tư vấn thiết kế đầy đủ, nhà cao cửa rộng sach sẽ đẹp đẽ là điều ai cũng mong muốn và hướng tới. Chính vì vậy để đáp ứng điều này thì các đơn vị tư vấn thiết kế kiến trúc nhà ở cũng đòi hỏi luôn phải trau dồi kiến thức và tạo ra các mẫu thiết kế nhà đẹp hơn phù hợp hơn với từng nhu cầu ngày một tăng cao của khách hàng.
Kiến Trúc Lê ra đời vơi tiêu chí là một trong những đơn vị tư vấn thiết kế kiến trúc nhà ở hàng đầu Việt Nam. Thế mạnh của Kiến Trúc Lê là tư vấn thiết kế theo từng ý tưởng riêng của mỗi khách hàng.
Đây là mẫu kiến trúc nhà 2 tầng 200m2 mái thái được Kiến Trúc Lê tư vấn thiết kế lấy từ ý tưởng của khách hàng của mình.
Với căn nhà biệt thự 2 tầng 200m2 đẹp này được thiết kế trên khuôn viên đất rộng rãi, thỏa mái bố trí sân vườn. Khách hàng yêu cầu thiết kế một căn nhà 2 tầng mái thái với một diện tích rộng khoản 200m2 đến 250m2. Kiến Trúc Lê đã tư vấn thiết kế ra một ngôi nhà mái thái đẹp này và được gia chủ hết sức ưng ý và xây dựng ngay với mẫu nhà đẹp này.
Mời bạn tham khảo hình ảnh thiết kế nhà 2 tầng 200m2 mái thái này của chúng tôi.

Mẫu nhà vườn 2 tầng 200m2 mái thái đẹp

Mẫu biệt thự 2 tầng 200m2 mái thái đẹp

Nhà 2 tầng mái thái 200m2 đẹp

Mẫu biệt thự 2 tầng 200m2

Nhà 2 tầng 200m2

Thiết kế biệt thự 200m2 2 tầng

Biệt thự 2 tầng 200m2 mái thái
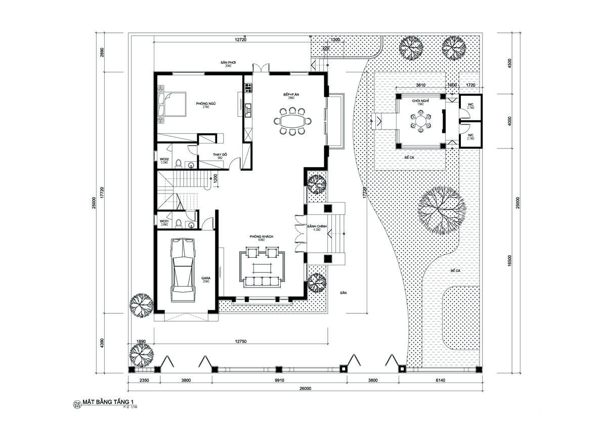
Mời bạn tham khảo bản vẽ bố trí công năng sử dụng tầng 1 của mẫu nhà 2 tầng 200m2 dưới đây để hiểu những gì chúng tôi muốn chia sẻ cùng bạn nhé.

Bản vẽ bố trí công năng nhà 2 tầng 200m2 t1

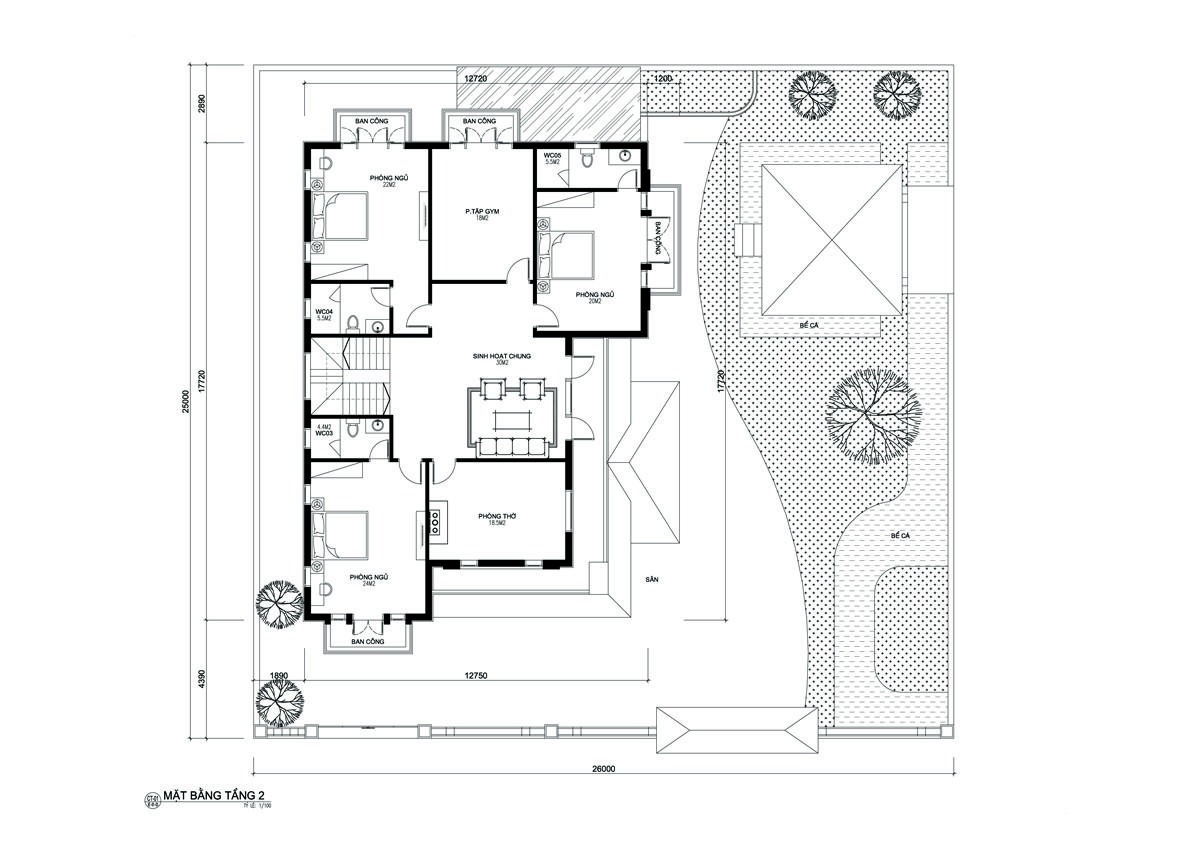
Bản vẽ nhà biệt thự 2 tầng 200m2 t2
Các bạn thân mến. Xây nhà là việc hết sức quan trọng, nhà bạn xây không chỉ đẹp mà còn phải được các chuyên gia hàng đầu về thiết kế kiến trúc phong thủy tư vấn bố trí, sắp xếp một cách hài hòa cho bạn thì không còn gì tuyệt vời hơn nữa. Nhà bạn hợp hướng, hợp tuổi với bạn sẽ mang lại nhiều may mắn và tài lộc cho bạn. Chính vì vậy hãy để các chuyên gia tư vấn cho bạn trước khi quyết định xây nhà bạn nhé.

Phong thủy nhà 2 tầng 200m2 t1
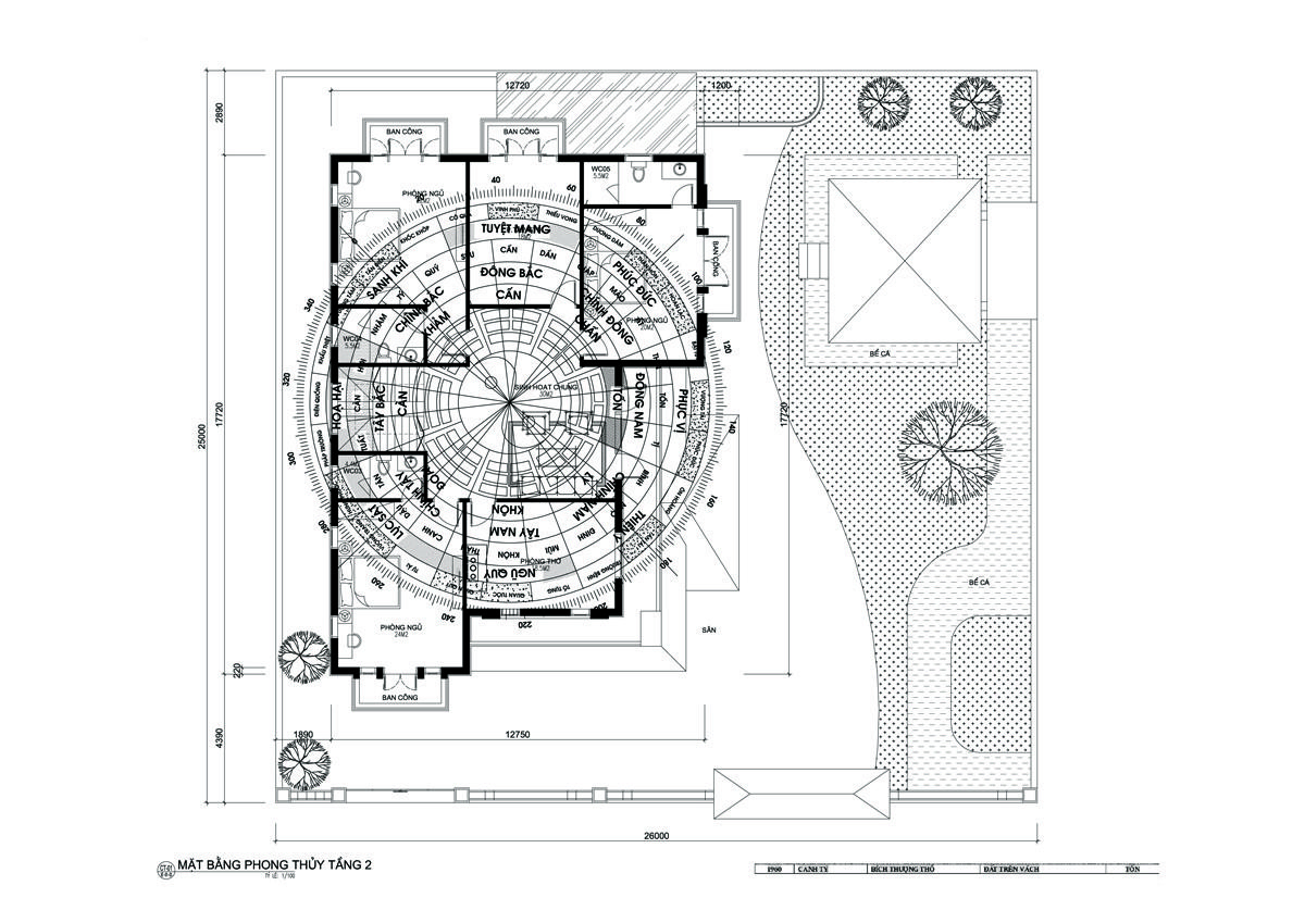
Mặt bằng bố trí phong thủy công năng tầng 2 cho mẫu nhà 2 tầng 200m2 mái thái đẹp này mời bạn cùng tham khảo với Kiến Trúc Lê.

Phong thủy biệt thự 2 tầng 200m2 t2
Các bạn thân mến. Việc xây nhà đối với mỗi người là hết sức quan trọng. Chính vì vây chúng tôi khuyên bạn trước khi xây nhà bạn nên lựa chọn cho mình một đơn vị tư vấn thiết kế kiến trúc nhà ở để tư vấn cho bạn. Họ là những chuyên gia trong lĩnh vực tư vấn thiết kế, Ngôi nhà của bạn trước khi xây không chỉ được lựa chọn từ những ý tưởng riêng của bạn, nó không chỉ đẹp mà phải phù hợp về mặt phong thủy và nhu cầu sử dụng thực tế của gia đình mình. Ngoài bản vẽ 3d mô phỏng ngôi nhà, thì việc tính toán phân chia chi tiết, bản vẽ kết cấu, điện nước nó sẽ giúp cho ngôi nhà của bạn bố trí chắc chắn hơn, khoa học hơn.
Nếu bạn ưng mẫu thiết kế biệt thự 2 tầng 200m2 mái thái đẹp này của Kiến Trúc Lê, dù nhu cầu xây dựng của bạn lớn hơn hay bé hơn chúng tôi luôn sẵn sàng tư vấn thiết kế lại cho phù hợp với nhu cầu thực tế của bạn. Mời bạn liên hệ trực tiếp với Kts Lê Hoàn TGĐ của chúng tôi theo số Hotline 093.999.1981
CÔNG TY TNHH KIẾN TRÚC LÊ VÀ CỘNG SỰ
♦ VPGD : P 3016 Tòa Nhà FLC Green Apartment - Số 18a Phạm Hùng - Mỹ Đình - Nam Từ Liêm - Hà Nội
♦ Hotline: 093.999.1981
♦ Zalo : 093.999.1981
♦ Website: Kientrucle.com
♦ Email: Kientruclevacongsu@gmail.com
Đây là danh sách các mẫu thiết kế nhà biệt thự đẹp nhất hiện nay của Kiến Trúc Lê. Mời bạn tham khảo
Các dự án thiết kế kiến trúc đã tư vấn triển khai cho khách hàng trên các tỉnh thành Việt Nam
.jpg)
(Điền thông tin vào form)