Quan tâm: 11861
Kiến Trúc Lê xin chia sẻ cùng bạn mẫu thiết kế nhà biệt thự phố 2 tầng 170m2 đẹp mang phong cách kiến trúc hiện đại. Với kích thước chiều dài và chiệu rộng mẫu nhà 2 tầng này là mặt tiền 9x19m đẹp. Mời bạn tham khảo làm ý tưởng cho mẫu thiết kế nhà bạn.
(Chúng tôi sẽ gọi lại ngay sau khi bạn đăng ký)
Kiến Trúc Lê xin chia sẻ cùng bạn mẫu thiết kế nhà biệt thự phố 2 tầng 170m2 đẹp mang phong cách kiến trúc hiện đại. Với kích thước chiều dài và chiệu rộng mẫu nhà 2 tầng này là mặt tiền 9x19m đẹp. Mời bạn tham khảo làm ý tưởng cho mẫu thiết kế nhà bạn.
Bạn đang có ý định xây nhà biệt thự phố 2 tầng. Bạn đang vào mạng internet tham khảo cho mình một mẫu nhà 2 tầng hiện đại đẹp làm ý tưởng thiết kế cho ngôi nhà sắp xây của mình. Kiến Trúc Lê mời bạn tham khảo mẫu nhà biệt thự phố 2 tầng 170m2 hiện đại đẹp của chúng tôi đã tư vấn thiết kế theo ý tưởng riêng cho khách hàng của mình thời gian qua. Hy vọng mẫu nhà 2 tầng 170m2 hiện đại này của chúng tôi sẽ là một ý tưởng tuyệt vời cho mẫu nhà của bạn.

Biệt thự phố 2 tầng 170m2 đẹp

Mặt tiền biệt thự 2 tầng 9x19m đẹp

Nhà biệt thự phố 2 tầng 170m2 hiện đại

Nhà đẹp 2 tầng 170m2 hiện đại

Bản vẽ bố trí công năng t1 nhà 2 tầng 9x19m hiện đại

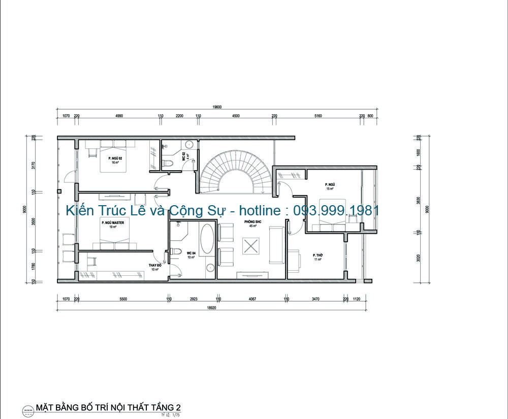
Bản vẽ bố trí công năng t2 nhà 2 tầng 170m2 đẹp
Các bạn thân mến. Bạn vừa tham khảo mẫu nhà 2 tầng 170m2 đẹp phong cách kiến trúc hiện đại được Kiến Trúc Lê tư vấn thiết kế cho khách hàng của mình thời gian qua. Nếu bạn có thửa đất giống hay gần giống mẫu nhà biệt thự 2 tầng 9x19m đẹp này của chúng tôi. Hãy liên hệ để được Kiến Trúc Lê tư vấn thiết kế cho bạn một cách cụ thể nhất.
CÔNG TY TNHH KIẾN TRÚC LÊ VÀ CỘNG SỰ
♦ VPGD : P 3016 Tòa Nhà FLC Green Apartment - Số 18a Phạm Hùng - Mỹ Đình - Nam Từ Liêm - Hà Nội
♦ Hotline: 093.999.1981
♦ Zalo : 093.999.1981
♦ Website: Kientrucle.com
♦ Email: Kientruclevacongsu@gmail.com
Đây là danh sách các mẫu thiết kế nhà biệt thự đẹp nhất hiện nay của Kiến Trúc Lê. Mời bạn tham khảo
Các dự án thiết kế kiến trúc đã tư vấn triển khai cho khách hàng trên các tỉnh thành Việt Nam
.jpg)
(Điền thông tin vào form)