Quan tâm: 5889
Kiến Trúc Lê xin chia sẻ cùng bạn mẫu thiết kế nhà biệt thự 3 tầng 2 mặt tiền hiện đại mái bằng. Mời bạn tham khảo làm ý tưởng cho mẫu thiết kế nhà đẹp của bạn.
(Chúng tôi sẽ gọi lại ngay sau khi bạn đăng ký)
Kiến Trúc Lê xin chia sẻ cùng bạn mẫu thiết kế nhà biệt thự 3 tầng 2 mặt tiền hiện đại mái bằng. Mời bạn tham khảo làm ý tưởng cho mẫu thiết kế nhà đẹp của bạn.
Bạn đang có ý định xây nhà 3 tầng đẹp theo phong cách hiện đại. Bạn đang vào mạng internet tham khảo cho mình một mẫu thiết kế nhà 3 tầng hiện đại để làm ý tưởng cho ngôi nhà của mình. Dưới đây Kiến Trúc Lê mời bạn tham khảo mẫu nhà biệt thự 3 tầng 2 mặt tiền hiện đại mái bằng do chúng tôi tư vấn thiết kế cho khách hàng của mình tại Vĩnh yên, Vĩnh Phúc.
Kiến Trúc Lê là đơn vị hàng đầu về tư vấn thiết kế nhà theo ý tưởng riêng và theo phong thủy cho khách hàng của mình trên tất cả các tỉnh thành của Việt Nam. Khách hàng khi làm việc với Kiến Trúc Lê không chỉ có một ngôi nhà đẹp theo ý tưởng riêng của gia chủ, Mà ngôi nhà sẽ phù hợp công năng, nhu cầu sử dụng, và đặc biệt là hợp hướng hợp tuổi với chủ nhân của ngôi nhà...Vì vậy thời gian qua Kiến Trúc Lê đã được khách hàng tin tưởng và đánh giá cao về ý tưởng, về phong cách thiết kế và về xu hướng nhu cầu của khách hàng.
| Tên dự án: Biệt thự 3 tầng 2 mặt tiền | Diện tích đất xây dựng: 130m2 |
| Chủ đầu tư: A Thức | Diện tích xây dựng: 120M2 |
| Địa điểm xây dựng: Vĩnh Yên - Vĩnh Phúc | Tổng diện tích sàn xây dựng: 360m2 |
| Phong cách kiến trúc: Hiện Đại | Dịch vụ: Tư vấn thiết kế kiến trúc |
Dưới đây là một số hình ảnh 3d do kiến trúc lê dựng lên khi lấy ý tưởng từ khách hàng của mình. Đã được khách hàng đánh giá cao cho mẫu nhà 3 tầng 2 mặt tiền hiện đại này. Mời các bạn cùng xem ảnh thực tế nhé.

Biệt thự 3 tầng 2 mặt tiền hiện đại

Biệt thự 3 tầng hiện đại mái bằng đẹp
.jpg)
Thiết kế nhà biệt thự 3 tầng hiện đại

Thiết kế nhà biệt thự 3 tầng hiện đại

Mặt bằng tầng 1

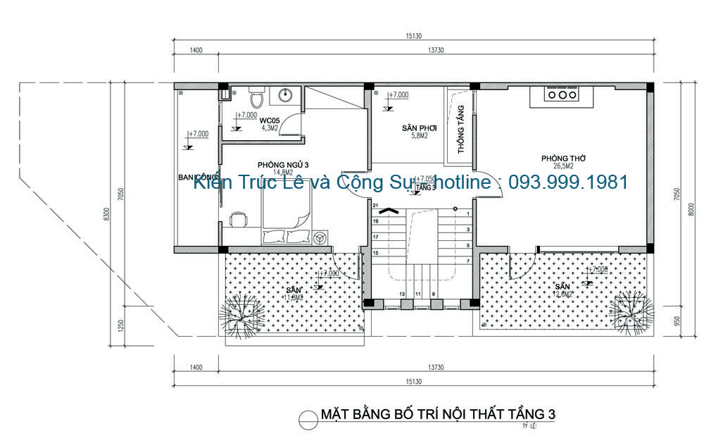
Mặt bằng tầng 2

Dưới đây là hình ảnh nhà biệt thự 3 tầng 2 mặt tiền đẹp đã được gia chủ xây dựng hoàn thiện đi vào sử dụng mà trong lần đi nghiệm thu Kiến Trúc Lê đã chụp ảnh lại. Mời bạn tham khảo chi tiết.

Biệt thự 3 tầng 2 mặt tiền đẹp đã xây hoàn thiện.

Nhà 3 tầng 2 mặt tiền đẹp hiện đại đã xây hoàn thiện.

Nhà 3 tầng 2 mặt tiền lô góc đẹp hiện đại đã xây hoàn thiện.

Nhà 3 tầng 2 mặt tiền lô góc đẹp hiện đại đã xây hoàn thiện.
Các bạn thân mến. Ngày nay cùng với sự phát triển của nền kinh tế thị trường. Nhu cầu cuộc sống của mỗi người ngày một tăng cao. Việc xây nhà 3 tầng không còn chỉ là xây to và chắc chắn nữa. Nhu cầu xây nhà đẹp, phù hợp nhu cầu công năng và phong thủy đang ngày một lên ngôi. Chính vì vậy để ngôi nhà của mình không bị lỗi thời, không bị lỗi mốt...Bạn hãy liên hệ làm việc với Kiến Trúc Lê. Chúng tôi bao gồm đội ngũ chuyên gia về kiến trúc nhà ở, chuyên gia về phong thủy trong nhà ở... Chúng tôi chắc chắn sẽ đem lại sự hài lòng tuyệt đối cho ngôi nhà của bạn. Hãy để lại thông tin hoặc liên hệ trực tiếp với chúng tôi để được tư vấn một cách cụ thể nhất.
CÔNG TY TNHH KIẾN TRÚC LÊ VÀ CỘNG SỰ
♦ VPGD : P 3016 Tòa Nhà FLC Green Apartment - Số 18a Phạm Hùng - Mỹ Đình - Nam Từ Liêm - Hà Nội
♦ Hotline: 093.999.1981
♦ Zalo : 093.999.1981
♦ Website: Kientrucle.com
♦ Email: Kientruclevacongsu@gmail.com
Đây là danh sách các mẫu thiết kế nhà biệt thự đẹp nhất hiện nay của Kiến Trúc Lê. Mời bạn tham khảo
Các dự án thiết kế kiến trúc đã tư vấn triển khai cho khách hàng trên các tỉnh thành Việt Nam
.jpg)
(Điền thông tin vào form)