Quan tâm: 10902
Kiến Trúc Lê xin giới thiệu đến các bạn mẫu thiết kế nhà biệt thự 3 tầng bố trí 5 phòng ngủ theo phong cách hiện đại mà chúng tôi tư vấn thiết kế cho khách hàng thời gian qua.
(Chúng tôi sẽ gọi lại ngay sau khi bạn đăng ký)
Bạn đang có ý định xây nhà. Bạn chưa biết minh nên xây như thế nào. Bạn có một ý tưởng xây cho mình một ngôi nhà vừa đẹp vừa độc đáo lại phù hợp với phong thủy tuổi của bạn. Bạn đang tìm một đơn vị tư vấn và thiết kế cho ngôi nhà của bạn.
Kiến Trúc Lê xin chia sẻ giới thiệu đến bạn mẫu thiết kế nhà 3 tầng 5 phòng ngủ đẹp hiện đại của chúng tôi để bạn tham khảo làm ý tưởng thiết kế cho ngôi nhà của mình.
Kiến Trúc Lê đơn vị hàng đầu Việt Nam về tư vấn thiết kế kiến trúc nhà ở theo từng ý tưởng riêng của khách hàng. Khách hàng đến với Kiến Trúc Lê được đội ngũ Kiến trúc sư thiết kế nhà đẹp cũng là những chuyên gia phong thủy hàng đầu hiện nay của chúng tôi tư vấn thiết kế theo ý tưởng riêng đó và tổng hợp lại các ý tường, dựng lên một bộ hồ sơ thiết kế kiến trúc cho khách hàng.
Dưới đây là hình ảnh bộ hồ sơ thiết kế nhà 3 tầng 5 phòng ngủ đẹp được Kiến Trúc Lê tư vấn thiết kế cho khách hàng của mình trong thời gian qua mời bạn tham khảo.
Dưới đây là bảng thông tin chi tiết về mẫu nhà 3 tầng 5 phòng ngủ đẹp theo phong cách kiến trúc hiện đại được Kiến Trúc Lê tư vấn thiết kế cho khách hàng của mình tại Nam Định cuối 2019. Mời bạn tham khảo chi tiết.
| Tên dự án: Biệt thự 3 tầng 5 phòng ngủ đẹp | Diện tích đất xây dựng: 300m2 |
| Chủ đầu tư: Anh Thuận | Diện tích xây dựng: 160m2 |
| Địa điểm xây dựng: Tp Nam định | Tổng diện tích sàn xây dựng: 480m2 |
| Phong cách kiến trúc: Hiện đại | Dịch vụ: Tư vấn thiết kế kiến trúc |
Dưới đây là hình ảnh bản vẽ 3d mẫu nhà biệt thự 3 tầng 5 phòng ngủ đẹp theo kiến trúc hiện đại được Kiến Trúc Lê tư vấn thiết kế cho khách hàng của mình. Được khách hàng rất hài lòng và đưa vào thi công xây dựng. Dự kiến hoàn thành vào cuối 2020. Mời bạn tham khảo chi tiết và làm ý tưởng cho ngôi nhà của mình.
.jpg)
Bộ hồ sơ thiết kế nhà 3 tầng 5 phòng ngủ đẹp được bàn giao cho khách hàng

Nhà 3 tầng hiện đại
Là một Kiến trúc sư giỏi tại Hà Nội và cũng là một chuyên gia về phong thủy KTS Lê Hoàn TGĐ của Kiến Trúc Lê khuyên bạn. Mỗi người trong cuộc đời chỉ có thể xây từ 1 đến 2 ngôi nhà để ở, Chính vì vậy hãy để các chuyên gia, những người có chuyên môn về tư vấn và thiết kế kiến trúc tư vấn cho bạn. Ngôi nhà của bạn khi đó sẽ được bố trí đẹp hơn, hài hòa hơn, hợp phong thủy hơn, không những vậy các chuyên gia về kiến trúc xây dựng sẽ tính toán và đưa ra bản vẽ chi tiết, bản vẽ kết cấu, bản vẽ điện nước. Mọi thứ trong ngôi nhà của bạn sắp xếp như thế nào sẽ được tính toán trước toàn bộ. Như vậy khi xây dựng sẽ tránh lẵng phí, chỗ thừa và chỗ lại thiêu.
Dưới đây là mẫu thiết kế biệt thự 3 tầng bố trí 5 phòng ngủ đẹp theo phong cách hiện đại mà Kiến Trúc Lê đã tư vấn và thiết kế cho khách hàng ở Tp Nam Định trong thời gian qua. Mời các bạn cùng tham khảo mẫu nhà đẹp này để lấy ý tưởng cho ngôi nhà của mình.

Mẫu nhà 3 tầng 5 phòng ngủ đẹp
Mỗi người chỉ có duy nhất 1 đến 2 lần xây nhà, Vì đây là việc trọng đại của mỗi một đời người, việc bạn bỏ chi phí thuê Kiến trúc sư tư vấn thiết kế tính toán trước toàn bộ cho bạn điều này sẽ giúp bạn rất nhiều trong khâu xây dựng. Vì bản vẽ thiết kế trên giấy có thể sửa được khi chưa phù hợp với ngôi nhà, chứ việc bạn đã xây dựng lên rồi sẽ rất khó để thay đổi.
Một ngôi nhà xây nên để cả gia đình bạn sinh sống, nếu mà ngôi nhà được xây đúng theo ý tưởng của bạn, đúng với những gì bạn thích, gia đình bạn thích. Khi đó cảm giác sông trong ngôi nhà sẽ rất thỏa mái, cuộc sống của bạn sẽ may mắn và hạnh phúc hơn.
Trường hợp nhiều người vì không muốn bỏ ra một khoản phí thuê Kiến trúc sư mà tự thỏa thuận đàm phán với thợ xây và xây nhà minh theo một mẫu nhà hàng xóm hay một mẫu mặt tiền 3d lấy trên mạng. Trường hợp này đại đa số các trường hợp khi xây xong về ở đều không được ứng ý vì nhiều lý do khác nhau. Tổng thể ngôi nhà xây lên kiểu chắp vá, xây xong thấy không ưng lại đập ra xây lại, tốn công thợ xây, tốn tiền nguyên vật liệu.. Mất thời gian công sức vào đó quá nhiều. Khi xây dựng xong về ở thì mới thấy được, cách bố trí công năng sử dụng không hợp lý, phòng thừa phòng thiếu, Bố trí phong thủy không hài hòa.. Và còn rất nhiều sự việc khác.
Mời các bạn tham khảo thêm mẫu thiết kế nhà 3 tầng 5 phòng ngủ đẹp này của Kiến Trúc Lê

Nhà 3 tầng 5 phòng ngủ đẹp hiện đại
Các bạn xem thêm hình ảnh mẫu thiết kế này dưới đây nhé.

Mẫu thiết kế nhà 3 tầng 5 phòng ngủ

Nhà đẹp 3 tầng 5 phòng ngủ

Nhà 3 tầng 5 phòng ngủ hiện đại đẹp nhất
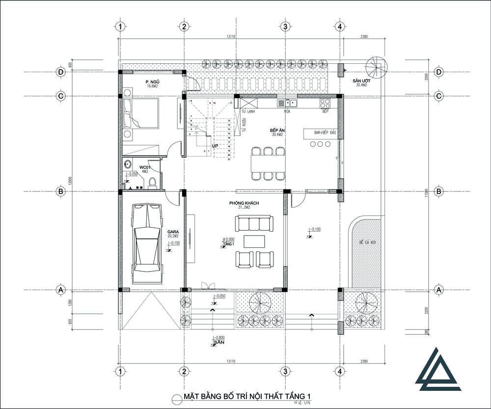
Hiện trạng bố trí mặt bằng tầng 1 mẫu thiết kế nhà đẹp này.

Bố trí công năng tầng 1.
Bố trí mặt bằng tầng 2.

Bố trí công năng tầng 2
Bố trí mặt bằng tầng 3.

Bố trí công năng tầng 3
Các bạn thân mến. Việc bạn đang có ý định xây nhà 3 tầng đẹp hiện đại. Thì ngoài việc bạn phải chuẩn bị đầy đủ về mặt tài chính thì việc đưa ra ý tưởng thiết kế cho ngôi nhà của mình là vô cùng quan trong. Ý tưởng ngôi nhà của bạn như thế nào về sau ngôi nhà của bạn sẽ được xây lên như vậy. Nếu bạn không có chuyên môn sâu về thiết kế và xây dựng hãy để những chuyên gia là các kiến trúc sư thiết kế nhà đẹp của chúng tôi tư vấn thiết kế cho bạn. Hãy liên hệ với chúng tôi.
CÔNG TY TNHH KIẾN TRÚC LÊ VÀ CỘNG SỰ
♦ VPGD : P 3016 Tòa Nhà FLC Green Apartment - Số 18a Phạm Hùng - Mỹ Đình - Nam Từ Liêm - Hà Nội
♦ Hotline: 093.999.1981
♦ Zalo : 093.999.1981
♦ Website: Kientrucle.com
♦ Email: Kientruclevacongsu@gmail.com
Đây là danh sách các mẫu thiết kế nhà biệt thự đẹp nhất hiện nay của Kiến Trúc Lê. Mời bạn tham khảo
Các dự án thiết kế kiến trúc đã tư vấn triển khai cho khách hàng trên các tỉnh thành Việt Nam
.jpg)
(Điền thông tin vào form)