Quan tâm: 8975
Kiến Trúc Lê xin chia sẻ giới thiệu đến bạn mẫu thiết kế nhà biệt thự 3 tầng 140m2 mái lệch kiểu thái đẹp mang phong cách hiện đại được chúng tôi tư vấn thiết kế cho khách hàng của mình thời gian qua.
(Chúng tôi sẽ gọi lại ngay sau khi bạn đăng ký)
Kiến Trúc Lê xin chia sẻ giới thiệu đến bạn mẫu thiết kế nhà biệt thự 3 tầng 140m2 mái lệch kiểu thái đẹp mang phong cách hiện đại được chúng tôi tư vấn thiết kế cho khách hàng của mình thời gian qua.
Bạn đang có ý định xây nhà 3 tầng mái lệch kiểu thái. Bạn đang vào mạng internet để tìm một mẫu thiết kế nhà 3 tầng đẹp nhất làm ý tưởng thiết kế cho ngôi nhà 3 tầng đẹp của mình.
Kiến Trúc Lê mời bạn tham khảo mẫu nhà 3 tầng 140m2 mái lệch thái của chúng tôi dưới đây để làm ý tưởng thiết kế cho ngôi nhà của bạn nhé.
Hy vọng tham khảo xong mẫu thiết kế nhà 3 tầng 140m2 hiện đại đẹp này của chúng tôi bạn sẽ có một ý tưởng tuyệt vời cho mẫu nhà bạn muốn xây. Đây là mẫu nhà 3 tầng 140m2 hiện đại được khách hàng của chúng tôi đánh giá cao vào đưa vào xây dựng ngay lập tức khi nhận được bộ hồ sơ thiết kế nhà 3 tầng 140m2 đẹp này.
Mời bạn tham khảo hình ảnh 3d mẫu nhà 3 tầng 140m2 đẹp của Kiến Trúc Lê dưới đây nhé.

Mẫu biệt thự 3 tầng 140m2 mái lệch thái đẹp
Kiến Trúc Lê là đơn vị hàng đầu hiện nay trong lĩnh vực tư vấn thiết kế nhà đẹp theo ý tưởng riêng của mỗi khách hàng. Toàn bộ mẫu nhà đẹp được chúng tôi tư vấn cho khách hàng đều được tính toán kỹ lưỡng phù hợp công năng và nhu cầu sử dụng riêng của mỗi gia đình khách hàng. Ngoài ra chúng tôi tư vấn bố trí phù hợp mặt phong thủy cho ngôi nhà của mỗi khách hàng. Khiến cho ngôi nhà không chỉ được thiết kế đẹp, phù hợp công năng, nó còn hợp tuổi, hợp phong thủy với chủ nhân của ngôi nhà. Bạn sẽ được may mắn và thịnh vượng hơn khi sinh sống tại ngôi nhà đó của chính mình.
Mời bạn tham khảo hình ảnh góc độ khác của mẫu nhà 140m2 3 tầng đẹp này của chúng tôi để đánh giá phong cách thiết kế nhé.

Mẫu nhà biệt thự 3 tầng 140m2 mái lệch thái đẹp nhất
Chủ đầu tư xây dựng ngôi nhà là một gia đình trẻ. Yêu thích lối kiến trúc nhà 3 tầng hiện đại mái lệch. Đã yêu cầu Kiến Trúc Lê tư vấn một ý tưởng riêng biệt. Mang đến cho một ngôi nhà đẹp độc đáo, khác hẳn so với lối kiến trúc mái thái thông thường.
Mời bạn xem thêm một góc độ khác của mẫu thiết kế nhà 3 tầng đẹp này của chúng tôi.

Mẫu nhà 3 tầng đẹp 140m2

Thiết kế biệt thự 3 tầng 140m2 mái lệch thái đẹp
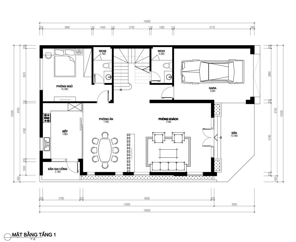
Bố trí mặt bằng công năng tầng 1 nhà biệt thự 3 tầng mái lệch thái phong cách hiện đại đẹp

Mặt bằng tầng 1
Bố trí phong thủy mặt bằng công năng tầng 1.

Phong thủy công năng t1
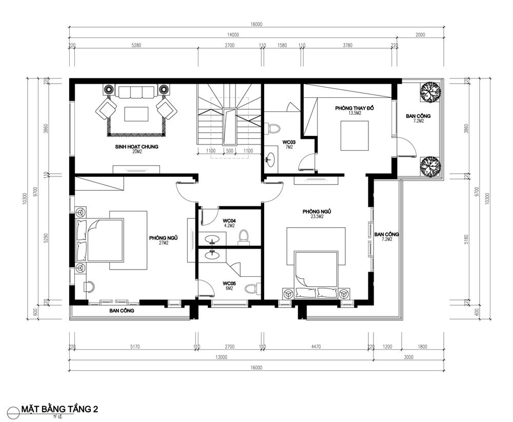
Mặt bằng bố trí công năng tầng 2 mẫu nhà 3 tầng 140m2 đẹp này

Mặt bằng công năng sử dụng tầng 2
Bố trí phong thủy công năng sử dụng tầng 2.

Phong thủy t2 nhà 3 tầng 140m2 hiện đại
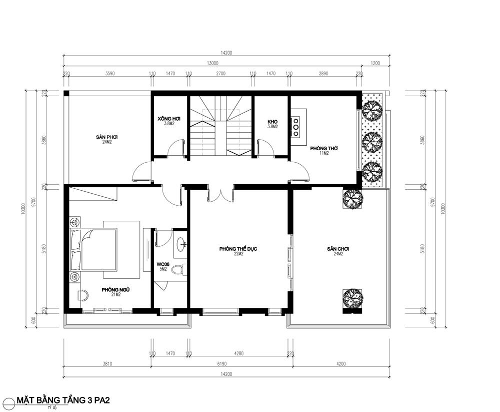
Mặt bằng bố trí công năng sử dụng tầng 3 của mẫu thiết kế nhà đẹp này.

Bố trí công năng tầng 3 nhà 3 tầng 140m2 hiện đại mái lệch thái đẹp này.
Bố trí phong thủy tầng 3 nhà 3 tầng 140m2 mái thái đẹp

Phong thủy tầng 3 nhà 3 tầng 140m2 hiện đại
Các bạn thân mến. Trên đây là mẫu thiết kế nhà 3 tầng 140m2 mái lệch thái hiện đại đẹp được Kiến Trúc Lê tư vấn thiết kế cho khách hàng thời gian qua. Hy vọng mẫu thiết kế nhà 3 tầng đẹp này của chúng tôi góp phần cho ý tưởng nguôi nhà sắp xây của bạn. Nếu bạn thích kiểu nhà 3 tầng đẹp này hãy liên hệ trực tiếp với đội ngũ kiến trúc sư thiết kế nhà đẹp của chúng tôi để được tư vấn thiết kế một cách cụ thể nhất.
CÔNG TY TNHH KIẾN TRÚC LÊ VÀ CỘNG SỰ
♦ VPGD : P 3016 Tòa Nhà FLC Green Apartment - Số 18a Phạm Hùng - Mỹ Đình - Nam Từ Liêm - Hà Nội
♦ Hotline: 093.999.1981
♦ Zalo : 093.999.1981
♦ Website: Kientrucle.com
♦ Email: Kientruclevacongsu@gmail.com
Đây là danh sách các mẫu thiết kế nhà biệt thự đẹp nhất hiện nay của Kiến Trúc Lê. Mời bạn tham khảo
Các dự án thiết kế kiến trúc đã tư vấn triển khai cho khách hàng trên các tỉnh thành Việt Nam
.jpg)
(Điền thông tin vào form)