Quan tâm: 23714
Kiến Trúc Lê đơn vị tư vấn thiết kế kiến trúc nhà biệt thự theo ý tưởng của khách hàng. Đây là mẫu thiết kế kiến trúc nhà biệt thự 4 tầng diện tích 10x15m đẹp phong cách hiện đại mới nhất hiện nay mà chúng tôi tư vấn thiết kế cho khách hàng thời gian qua.
(Chúng tôi sẽ gọi lại ngay sau khi bạn đăng ký)
Kiến Trúc Lê đơn vị tư vấn thiết kế kiến trúc nhà biệt thự theo ý tưởng của khách hàng. Đây là mẫu thiết kế kiến trúc nhà biệt thự 4 tầng diện tích 10x15m đẹp phong cách hiện đại mới nhất hiện nay mà chúng tôi tư vấn thiết kế cho khách hàng thời gian qua.
Bạn đang có ý định xây cho mình một căn nhà, căn biệt thự 4 tầng đẹp mang phong cách hiện đại. Bạn đang tìm hiểu một số mẫu nhà biệt thự 4 tầng để lấy ý tưởng cho ngôi nhà của mình. Bạn đang không biết trên thị trường hiện nay có công ty thiết kế kiến trúc nào tư vấn và thiết kế nhà theo ý tưởng riêng của bạn. Ý tưởng xây nhà của bạn phải đẹp, độc đáo, phù hợp công năng nhu cầu sử dụng. Đặc biệt nó phải phù hợp về phong thủy tuổi của bạn.
Dưới đây Kiến Trúc Lê xin mời bạn tham quan, tham khảo mẫu thiết kế nhà 4 tầng đẹp có diện tích 150 m2 đơn vị chúng tôi mới đây đã tư vấn và thiết kế cho khách hàng của mình.
Dưới đây mời bạn tham khảo chi tiết về thông tin mẫu nhà biệt thự 4 tầng 10x15m hiện đại đẹp này do Kiến Trúc Lê tư vấn thiết kê cho khách hàng của mình thời gian vừa qua.
| Tên dự án : Thiết kế biệt thự 4 tầng | Diện tích đất : 20m2 |
| Chủ đầu tư : Anh Mạnh | Diện tích xây dựng : 150m2 |
| Địa điểm xây dựng: Quảng Ninh | Tổng diện tích sàn xây dựng: 600m2 |
| Phong cách kiến trúc : Hiện Đại | Dịch vụ : Tư vấn thiết kế kiến trúc |
Đây là hình ảnh hồ sơ bản vẽ thiết kế nhà biệt thự 4 tầng diện tích 10x15m đẹp phong cách hiện đại

Bộ hồ sơ thiết kế biệt thự 4 tầng 10x15m đẹp
Nhận được yêu cầu từ khách hàng là chủ đầu tư muốn xây cho mình một căn nhà dạng biệt thự đẹp 4 tầng phong cách hiện đại. Kiến Trúc Lê đã đến tân địa điểm mảnh đất mà chủ nhân muốn xây ngôi biệt thự đẹp này để tham khảo hiện trạng mảnh đất. Với diện tích mảnh đất là 600m2, gia chủ muốn xây một căn biệt thự đẹp, sang trọng với diện tích vừa phải là 150m2 mặt sàn. Vì như vậy sẽ phù hợp với chi phí xây dựng cũng như phù hợp với nhu cầu sử dụng của gia chủ.
Từ ý tưởng của gia chủ là một mẫu thiết kế biệt thự 4 tầng đẹp hiện đại đã được thao khảo đâu đó trên mạng, Kiến Trúc Lê đã tư vấn cụ thể và dựng lên bản vẽ 3d mẫu thiết kế nhà biệt thự 4 tầng diện tích 150m2 đẹp này.
Bản vẽ đến tay gia chủ được gia chủ vô cùng hài lòng và thích mẫu thiết kế nhà 4 tầng 10x15m phong cách hiện đại mới nhất này. Mời các bạn tham khảo hình ảnh thiết kế dưới đây của Kiến Trúc Lê.

Mẫu thiết kế nhà 4 tầng 10x15m đẹp hiện đại
Hiện tại công trình nhà ở biệt thự 4 tầng 10x15m2 này đang được gia chủ cho xây dựng. Kiến Trúc Lê đã hoàn thiện hồ sơ kỹ thuật thi công bàn giao cho gia chủ. Trong thời gian tới đây nếu bạn có nhu cầu muốn tham quan thực thế mẫu nhà biệt thự 4 tầng 150m2 đẹp hiện đại này để lấy ý tưởng cho mẫu nhà của mình, các bạn có thể liên hệ với Kiến Trúc Lê để đi tham quan thực tế.
Một ngôi nhà xây xong được giới chuyên môn đánh giá cao không những phải tọa lạc trên một khu đất đẹp, nó còn phải đáp ứng được nhiều yếu tố khác khi chủ nhân ngôi nhà về ở. Công năng sử dụng phải phù hơn, hài hòa phong thủy.

Nhà 4 tầng 150m2 đẹp
Mời các bạn tham khảo thêm một số hình ảnh ở góc độ khác của mẫu thiết kế nhà 4 tầng 150m2 mặt bằng này nhé.

Mẫu nhà 4 tầng 150m2 đẹp nhất

Nhà biệt thự 4 tầng đẹp hiện đại

Mẫu nhà 4 tầng đẹp nhất

Kiến trúc biệt thự 4 tầng 150m2 đẹp
Dưới đây là bản vẽ bố trí công năng sử dụng của ngôi nhà 4 tầng 150m2 đẹp nhàu các bạn tham khảo nhé.
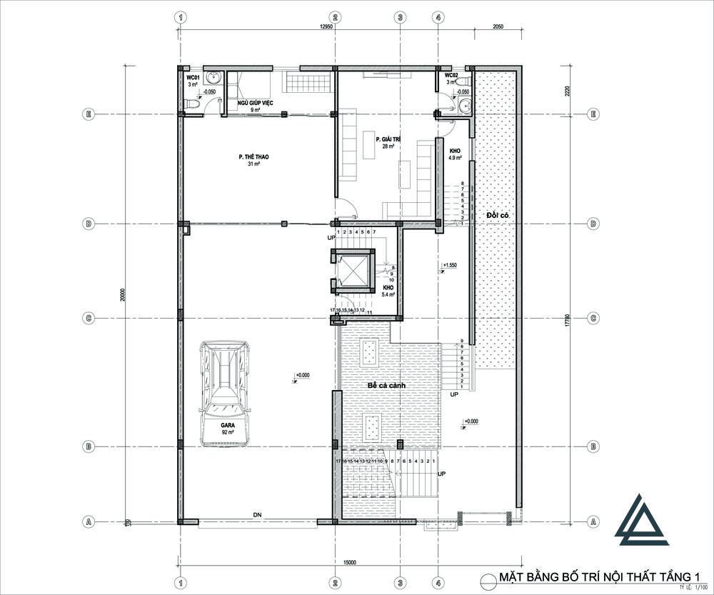
Bản vẽ bố trí mặt bằng tầng 1.

Mặt bằng bố trí công năng tầng 1
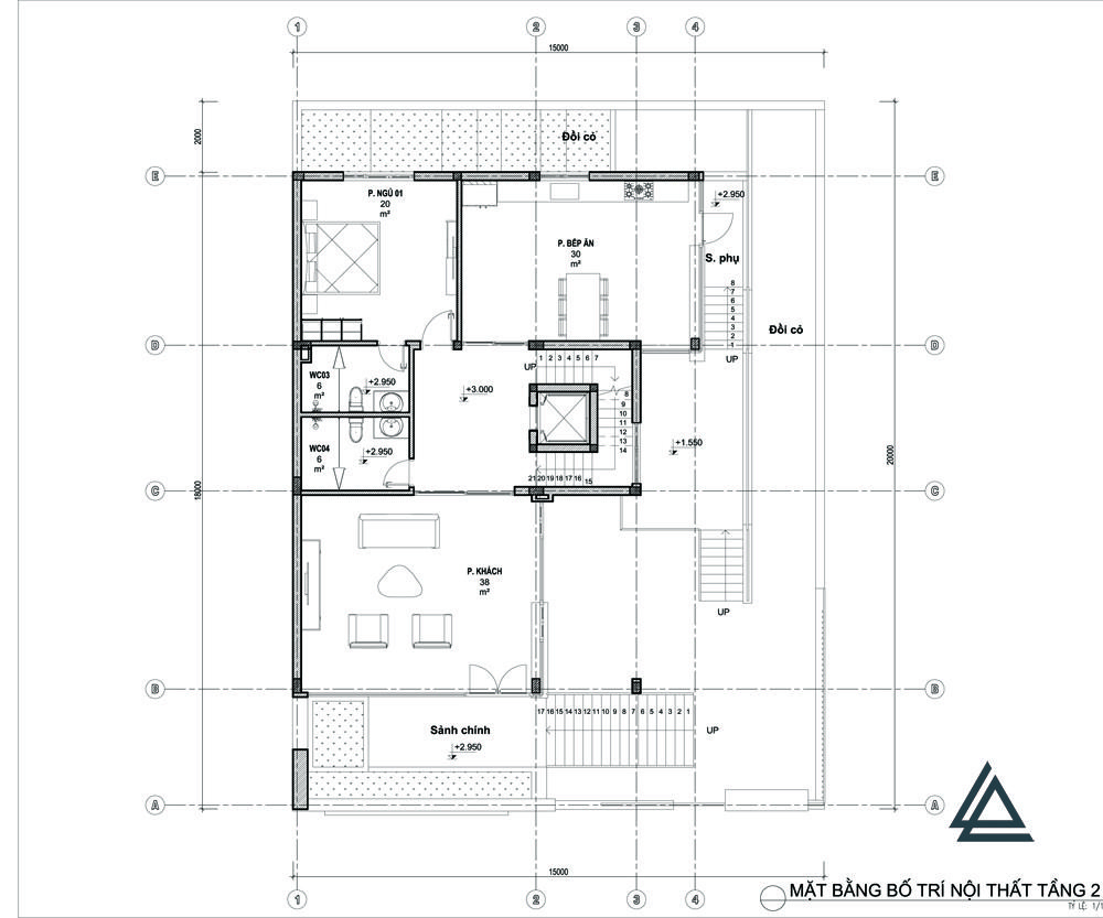
Bản vẽ bố trí mặt bằng tầng 2.

Mặt bằng bố trí công năng tầng 2
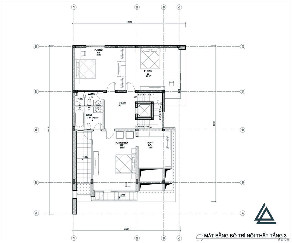
Bản vẽ bố trí mặt bằng tầng 3.

Mặt bằng bố trí công năng tầng 3
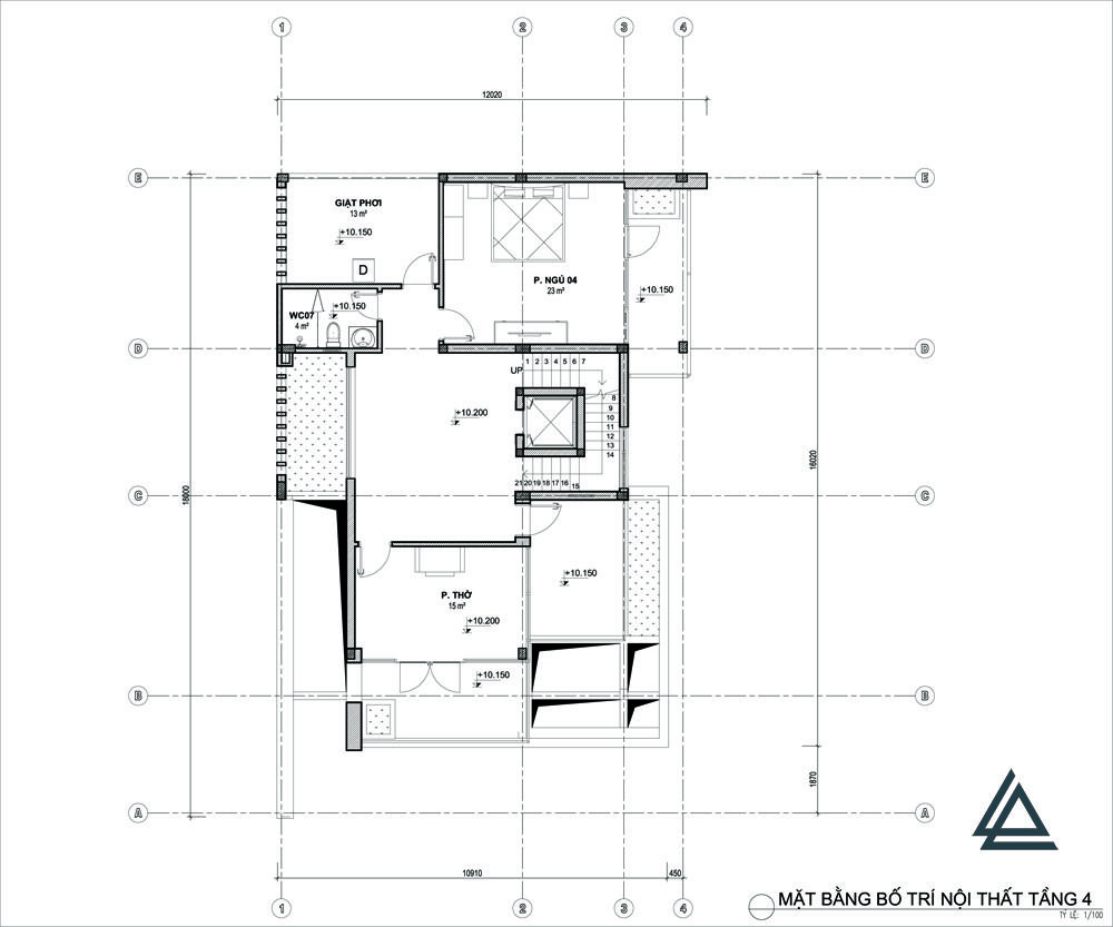
Bản vẽ bố trí mặt bằng tầng 4.

Mặt bằng bố trí công năng tầng 4
Dưới đây chúng tôi mời bạn tham khảo hình ảnh thực tế ngôi nhà 4 tầng 10x15m tổng diện tích 150m2 xây dựng do KTS của Kiến Trúc Lê xuống giám sát thi công chụp ảnh lại. Mời bạn cùng tham khảo nhé.

Nhà biệt thự 4 tầng 150m2 đẹp

Nhà biệt thự 4 tầng 150m2 đẹp

Nhà 4 tầng 150m2 đẹp

Góc độ xây nhà 150m2 đẹp

Xây nhà biệt thự 4 tầng 10x15m đẹp
Các bạn thân mến. Việc xây cho mình một ngôi nhà đẹp để là nơi sinh hoạt chung của cả đại gia đình là công việc vô cùng quan trọng. Thì việc đưa ra ý tưởng cho ngôi nhà cũng không phải là điều đơn giản. Ngôi nhà của mình được hình thành và xây như thế nào nó phụ thuộc trực tiếp vào ý tưởng ban đầu đó của bạn. Nếu bạn chưa có ý tưởng, hay ý tưởng xây nhà vẫn còn dời rạc chưa nhất quán. Hãy để Kiến Trúc Lê là những người có chuyên môn trong lĩnh vực tư vấn thiết kế kiến trúc nhà ở. Chúng tôi sẽ tư vấn cụ thể nhất cho bạn. Bạn chỉ cần để lại thông tin hay gọi trực tiếp cho chúng tôi.
CÔNG TY TNHH KIẾN TRÚC LÊ VÀ CỘNG SỰ
♦ VPGD : P 3016 Tòa Nhà FLC Green Apartment - Số 18a Phạm Hùng - Mỹ Đình - Nam Từ Liêm - Hà Nội
♦ Hotline: 093.999.1981
♦ Zalo : 093.999.1981
♦ Website: Kientrucle.com
♦ Email: Kientruclevacongsu@gmail.com
Đây là danh sách các mẫu thiết kế nhà biệt thự đẹp nhất hiện nay của Kiến Trúc Lê. Mời bạn tham khảo
Các dự án thiết kế kiến trúc đã tư vấn triển khai cho khách hàng trên các tỉnh thành Việt Nam
.jpg)
(Điền thông tin vào form)