Quan tâm: 3055
Kiến Trúc Lê xin chia sẻ giới thiệu đến bạn mẫu thiết kế kiến trúc khách sạn tiêu chuẩn 3 sao 7 tầng mang phong cách kiến trúc xanh xu hướng của tương lai.
(Chúng tôi sẽ gọi lại ngay sau khi bạn đăng ký)
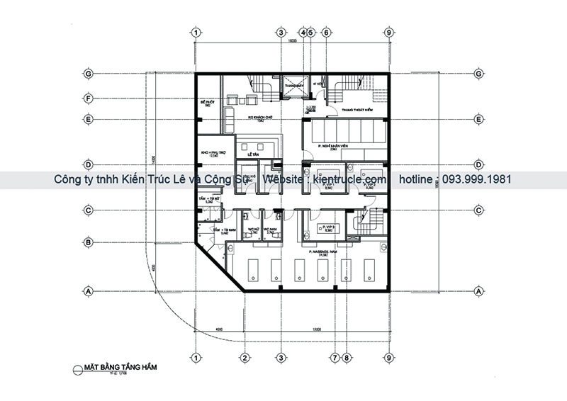
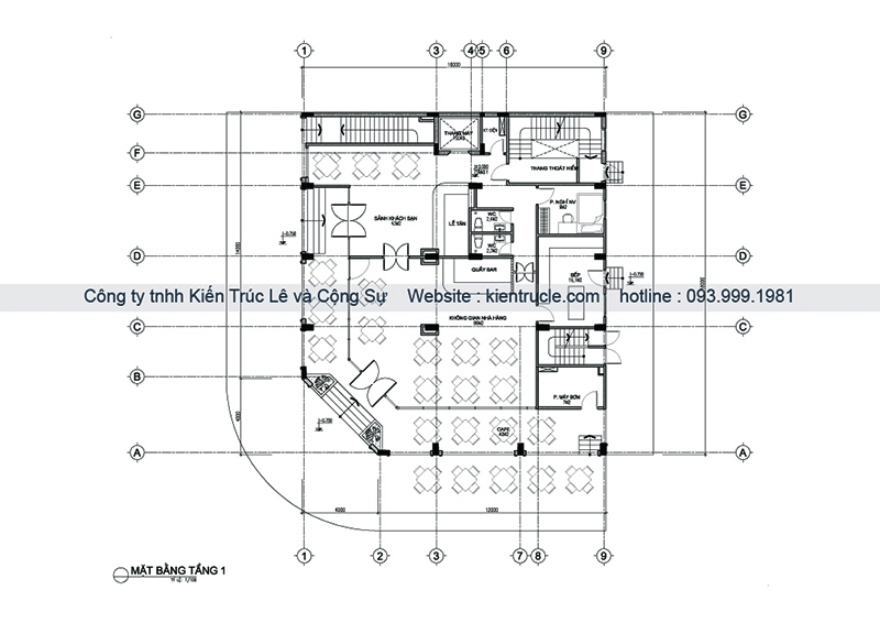
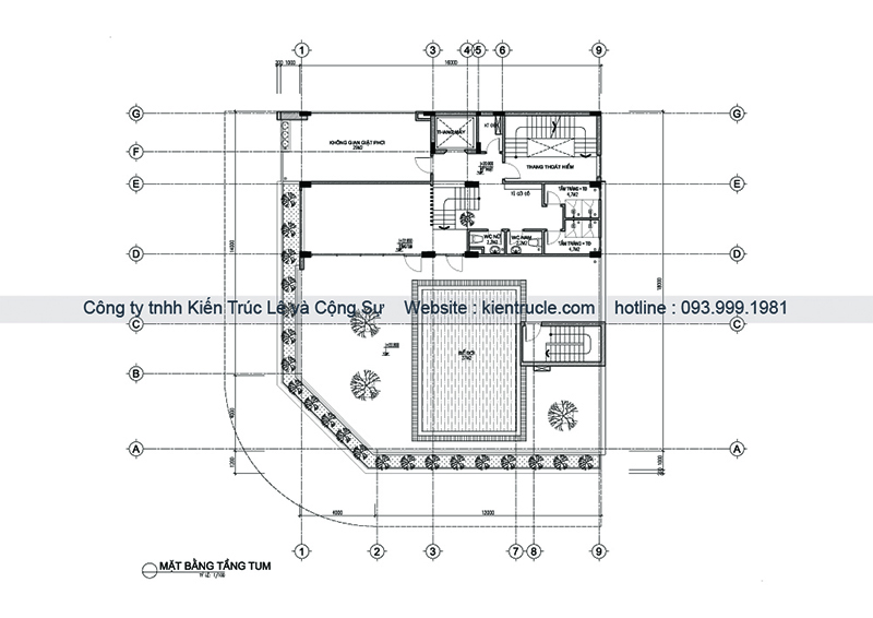
Công trình khách sạn nằm trên lô đất có vị trí góc phố đắc địa với kích thước 16x18m. Công trình được thiết kế gồm 7 tầng nổi và 1 tầng hầm. Tầng hầm được thiết kế làm dịch vụ xông hơi, massage, đây là một loại hình kinh doanh rất phổ biến và cũng đặc biệt phù hợp và cần thiết với tiện ích của thiết kế khách sạn tiêu chuẩn 3 sao. Tầng 1 được bố trí không gian tiếp đón lễ tân và không gian ăn uống phục vụ khách lưu trú tại khách sạn và khách qua đường. Các phòng nghỉ khách sạn được bố trí từ tầng 2 lên tầng 6, Mỗi tầng bố trí 8 phòng, trong đó có một phòng vip với diện tích 34m2 và 7 phòng nghỉ thường với diện tích trung bình từ 19m2 đến 22m2. Tầng 7 bố trí không gian giặt phơi đồ, bể bơi và không gian cafe ngoài trời. Giao thông đứng của toà nhà gồm một cầu thang máy và hai cầu thang bộ thoát hiểm, đảm bảo an toàn cho mọi người khi xảy ra sự cố.
Hình thức kiến trúc mặt ngoài của khách sạn mang phong cách hiện đại với đường nét bố cục đơn giản nhưng không đơn điệu, mà vẫn tạo nên điểm nhấn cuốn hút ánh nhìn. Kiến trúc sư thiết kế công trình cũng được khéo léo bố trí những bồn trồng cây xanh tại một số vị trí trên mặt tiền khách sạn, vừa khiến cho khách nghỉ được gần gũi với thiên nhiên, vừa tạo nên cảm giác xanh mát cho công trình.
Hình ảnh 3d mẫu khách sạn 7 tầng đẹp hiện đại

Thiết kế khách sạn tiêu chuẩn 3 sao 7 tầng đẹp

Mẫu kiến trúc khách sạn 7 tầng đẹp

Hình ảnh khách sạn 7 tầng đẹp kiểu hiện đại

Thiết kế khách sạn có bể bơi

Thiết kế khách sạn tiêu chuẩn 3 sao

Mặt bằng tầng hầm

Mặt bằng tầng 1

Mặt bằng tầng điển hình

Mặt bằng tầng tum
Các bạn thân mến. Việc đầu tư cho mình một khách sạn bài bản để kinh doanh là vô cùng quan trọng. Nếu ý tưởng Thiết kế khách sạn đẹp của bạn đã hình thành. Hãy liên hệ để được đội ngũ kiến trúc sư của Kiến Trúc Lê tư vấn và thiết kế cho bạn nhé!
CÔNG TY TNHH KIẾN TRÚC LÊ VÀ CỘNG SỰ
♦ VPGD : P 3016 Tòa Nhà FLC Green Apartment - Số 18a Phạm Hùng - Mỹ Đình - Nam Từ Liêm - Hà Nội
♦ Hotline: 093.999.1981
♦ Zalo : 093.999.1981
♦ Website: Kientrucle.com
♦ Email: Kientruclevacongsu@gmail.com
Đây là danh sách các mẫu thiết kế nhà biệt thự đẹp nhất hiện nay của Kiến Trúc Lê. Mời bạn tham khảo
Các dự án thiết kế kiến trúc đã tư vấn triển khai cho khách hàng trên các tỉnh thành Việt Nam
.jpg)
(Điền thông tin vào form)