Quan tâm: 22210
Kiến Trúc Lê xin giới thiệu đến bạn đây là mẫu thiết kế nhà 3 tầng 2 mặt tiền đẹp theo phong cách kiến trúc hiện đại được lựa chọn nhiều nhất hiện nay tại Việt Nam.
(Chúng tôi sẽ gọi lại ngay sau khi bạn đăng ký)
Kiến Trúc Lê xin giới thiệu đến bạn đây là mẫu thiết kế nhà 3 tầng 2 mặt tiền đẹp theo phong cách kiến trúc hiện đại được lựa chọn nhiều nhất hiện nay tại Việt Nam.
Bạn đang có ý định xây nhà 3 tầng để ở. Bạn đang không biết lựa chọn phong cách kiến trúc như thế nào để phù hợp với nhu cầu thực tế của mình. Bạn đang vào mạng internet tìm hiểu một mẫu thiết kế nhà đẹp làm ý tưởng cho mẫu nhà của bạn. Kiến Trúc Lê xin chia sẻ với bạn mẫu nhà 3 tầng 2 mặt tiền hiện đại được chúng tôi tư vấn thiết kế cho khách hàng của mình thời gian qua. Hy vọng mẫu nhà góc phố 3 tầng 2 mặt tiền đẹp này sẽ góp phần làm nên ý tưởng thiết kế cho ngôi nhà mơ ước của bạn. Đây là mẫu nhà 3 tầng 2 mặt tiền góc phố được lựa chọn nhiều nhất hiện nay bởi nó mang phong cách kiến trúc hiện đại mới nhất.
Sở hữu một thửa đất góc phố có kích thước cụ thể là 10x16m. Gia chủ liên hệ với Kiến Trúc Lê yêu cầu được tư vấn thiết kế một ngôi nhà 3 tầng có diện tích chi tiết là 10x13m còn 3m phia trước làm khu sân chơi. Yêu cầu tập chung là nhà 3 tầng 2 mặt tiền mái thái lệch theo phong cách kiến trúc hiện đại mới nhất hiện nay. Từ yêu cầu đó của gia chủ, Kiến Trúc Lê đã lên phương án thiết kế nhà 3 tầng 2 mặt tiền hiện đại đẹp dưới đây đưa đến tay gia chủ. Được gia chủ vô cùng hài lòng với mẫu thiết kế nhà đẹp của mình và ký hợp đồng làm hồ sơ thiết kế kiến trúc cho ngôi nhà. Hiện tại ngôi nhà đẹp này đang được gia chủ đưa vào xây dựng. Mời bạn tham khảo hình ảnh của mẫu nhà 3 tầng 2 mặt tiền đẹp này.

Thiết kế nhà 3 tầng 2 mặt tiền hiện đại

Nhà 3 tầng 2 mặt tiền hiện đại

Mẫu nhà ống đẹp 3 tầng 2 mặt tiền

Mẫu nhà đẹp 3 mặt tiền 10m
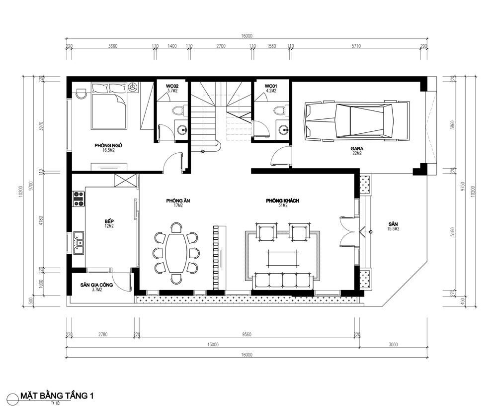
Nhìn sơ bộ bản vẽ bố trí công năng sử dụng tầng 1 ngôi nhà 3 tầng đẹp này bạn sẽ thấy được cách bố trí vô cùng hợp lý của đội ngũ kiến trúc sư thiết kế nhà đẹp của Kiến Trúc Lê.
Bao gồm:
Mời bạn xem chi tiết ở hình ảnh bản vẽ dưới đây.

Mặt bằng tầng 1 nhà 3 tầng 2 mặt tiền hiện đại
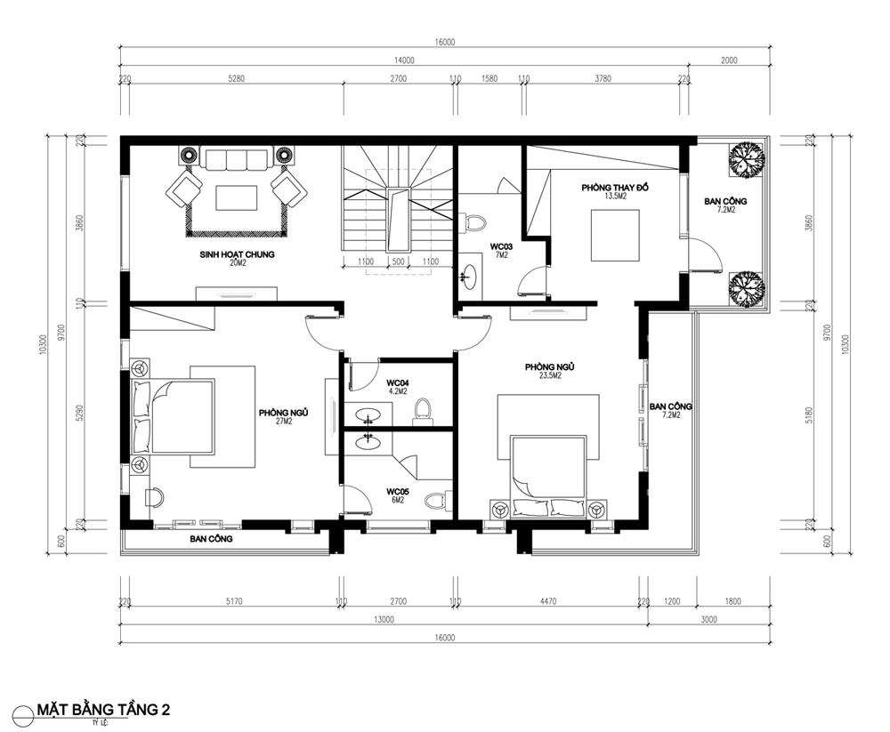
Mặt bằng công năng sử dụng tầng 2 nhìn bao quát cách bố trí công năng sử dụng bạn thấy ngay được ở tầng 2 ngôi nhà được bố trí 2 phòng ngủ, 1 phòng sinh hoạt chung và 1 phòng thay đồ. Với các mức diện tích sử dụng tương đối thỏa mái, chủ nhân ngôi nhà sẽ tận hưởng sự thỏa mái nhất trong không gian sinh sống của ngôi nhà mình.
Mời bạn tham khảo chi tiết qua bản vẻ dưới đây của chúng tôi.

Mặt bằng tầng 2 nhà 3 tầng 2 mặt tiền hiện đại đẹp
Mời bạn tham khảo hình ảnh bản vẽ bố trí mặt bằng công năng sử dụng tầng 3 của mẫu nhà 3 tầng 2 mặt tiền hiện đại đẹp này do Kiến Trúc Lê tư vấn bố trí theo đúng với nhu cầu sử dụng của chủ nhân ngôi nhà.

Mặt bằng tầng 3 nhà 3 tầng 2 mặt tiền hiện đại
Các bạn thân mến. Trên đây chúng tôi đã chia sẻ cùng bạn mẫu nhà 3 tầng 2 mặt tiền hiện đại đẹp mà chúng tôi đã tư vấn thiết kế cho khách hàng của mình thời gian qua. Nếu bạn ưng mẫu thiết kế nhà phố 3 tầng đẹp này nhưng kích thước và diện tích xây dựng của bạn có vẻ không phù hợp. Hãy liên hệ ngay với chúng tôi để được tư vấn thiết kế theo ý tưởng riêng của bạn một cách cụ thể nhất.
CÔNG TY TNHH KIẾN TRÚC LÊ VÀ CỘNG SỰ
♦ VPGD : P 3016 Tòa Nhà FLC Green Apartment - Số 18a Phạm Hùng - Mỹ Đình - Nam Từ Liêm - Hà Nội
♦ Hotline: 093.999.1981
♦ Zalo : 093.999.1981
♦ Website: Kientrucle.com
♦ Email: Kientruclevacongsu@gmail.com
Đây là danh sách các mẫu thiết kế nhà biệt thự đẹp nhất hiện nay của Kiến Trúc Lê. Mời bạn tham khảo
Các dự án thiết kế kiến trúc đã tư vấn triển khai cho khách hàng trên các tỉnh thành Việt Nam
.jpg)
(Điền thông tin vào form)