Quan tâm: 25218
Kiến Trúc Lê đơn vị hàng đầu về tư vấn và thiết kế kiến trúc nhà ở. Đây là mẫu thiết kế nhà lô phố 4 tầng diện tích 6x15m đẹp mang phong cách hiện đại được chúng tôi tư vấn thiết kế theo ý tưởng của khách hàng thời gian qua.
(Chúng tôi sẽ gọi lại ngay sau khi bạn đăng ký)
Kiến Trúc Lê đơn vị hàng đầu về tư vấn và thiết kế kiến trúc nhà ở. Đây là mẫu thiết kế nhà lô phố 4 tầng diện tích 6x15m đẹp mang phong cách hiện đại được chúng tôi tư vấn thiết kế theo ý tưởng của khách hàng thời gian qua.
Bạn đang có ý định xây nhà phố 4 tầng đẹp. Bạn đang tham khảo trên mạng internet mẫu nhà phố 4 tầng mạng phong cách hiện đại để làm ý tưởng cho mẫu thiết kế nhà phố đẹp của mình. Kiến Trúc Lê mời bạn tham khảo mẫu nhà lô phố 4 tầng 6x15m đẹp của chúng tôi nhé. Hy vọng mẫu nhà 4 tầng 6x15m hiện đại đẹp này sẽ làm ý tưởng thiết kế cho ngôi nhà tương lai của bạn.
Kiến Trúc Lê gửi đến bạn mẫu thiết kế nhà có chiều ngang 6m sâu 15m có quy mô 4 tầng. Ngôi nhà luôn khiến mọi người phải ngắm nhìn bởi ý tưởng tạo dựng kiến trúc đẹp mang phong cách hiện đại, ấn tượng. Về khía cạnh công năng, kiến trúc sư thiết kế nhà đẹp của Kiến Trúc Lê phân chia hợp lý phục vụ nhu cầu sử dụng cho toàn thể gia đình có nhiều thành viên. Để có được cảm nhận rõ hơn, mời bạn cùng xem chi tiết bản vẽ thiết kế nhà 6x15m đẹp của chúng tôi dưới đây nhé.
Với diện tích mảnh đất là 6,3x18m, tuy nhiên diện tích thực tế được xây dựng chỉ là 6x15m. Theo yêu cầu, mẫu nhà đẹp này được thiết kế với quy mô 4 tầng theo phong cách hiện đại. Mời bạn xem chi tiết hình ảnh mẫu thiết kế nhà phố 4 tầng đẹp này dưới đây nhé.

Mẫu thiết kế nhà phố 4 tầng 6x15m đẹp nhất
Với ý tưởng thiết kế kiến trúc được khách hàng đưa ra cho Kiến Trúc Lê, được đội ngũ kts thiết kế nhà đẹp tổng hợp và đưa vào thiết kế là hoàn hảo, dễ dàng làm hài lòng gia chủ. Theo đó, mẫu nhà 4 tầng 6x15m đẹp này ở mặt tiền được lựa chọn tone màu trắng sáng làm chủ đạo. Ấn tượng của mẫu nhà đẹp bắt nguồn từ cách tạo hình, các khối cạnh kiến trúc thể hiện độc đáo và sắc net. Quan sát qua các hình ảnh phối cảnh, quý vị có thể dễ dàng cảm nhận được rõ nét được điều này.
Dưới đây là góc nhìn khác của mẫu nhà 4 tầng đẹp mang phong cách hiện đại này mời bạn cũng xem với Kiến Trúc Lê nhé.

Nhà 4 tầng đẹp mang phong cách hiện đại
Với lối kiến trúc hiện đại đẹp. Mẫu thiết kế nhà đẹp này được bố trí hệ thống mái nhà bằng bê tông cốt thép, phía trước có khoảng mái che đưa ra dạng vòm đẹp phù hợp với tổng thể kiến trúc. Khoảng ban công ở tầng 4 bố trí hệ mái che lam bê tông. Đấy được xem là mẫu nhà 4 tầng hiện đại được ưa chuộng nhất hiện nay tại Việt Nam.

Nhà 4 tầng hiện đại được yêu thích nhất
Điểm nổi bật trong ý tưởng thiết kế nhà 4 tầng đẹp này đó chính là việc tạo dựng được nét đẹp thẩm mỹ cao mà không cần sử dụng quá nhiều chi tiết trang trí cầu kì, phức tạp.
Những ô cửa lớn nhỏ bày trí ở mặt tiền nhà 4 tầng 6x15m đẹp này làm cho ngôi nhà trở nên thanh thoát và thoáng rộng hơn. Ngoài ra, việc bố trí hợp lý hệ thống đèn trần giúp cho căn nhà luôn có được sự lung linh khi về đêm ngay từ góc nhìn bên ngoài của mẫu nhà đẹp này.
Mời bạn xem hình ảnh ở góc độ khác mẫu thiết kế nhà 4 tầng 6x15m hiện đại đẹp này

Mẫu nhà 6x15m đẹp 4 tầng
Mẫu thiết kế nhà 6x15m 4 tầng có để một khoảng sân phía trước rộng, bên ngoài có bố trí thêm hệ cổng và tường rào chắc chắn. Chi tiết cổng làm từ sắt thiết kế kiểu dáng đơn giản, hiện đại. Các bức tường rào được ốp gạch trang trí ở mặt tiền mang lại điểm nhấn thẩm mỹ cho ngôi nhà đẹp này.

Mẫu nhà phố 4 tầng đẹp nhất
Bạn chỉ cần ngước mắt nhìn lên xem tổng thể của mẫu thiết kế nhà lô phố 4 tầng đẹp này sẽ cảm nhận được sự khác biệt trong phong cách thiết kế nhà đẹp này.
Mẫu thiết kế nhà phố 4 tầng đẹp có diện tích xây dựng là 6x15m được đáp ứng cho nhu cầu sử dụng của gia đình có nhiều thành viên.
Dưới đây là hình ảnh bố trí mặt bằng công năng sử dụng mẫu nhà 4 tầng diện tích 6x15m đẹp của Kiến Trúc Lê

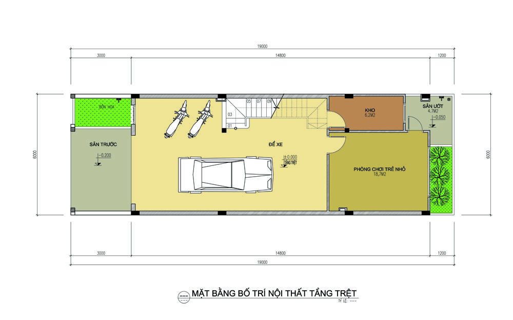
Mặt bằng bố trí công năng sử dụng tầng 1 hay còn được gọi là tầng trệt
Khoảng sân trước được để rộng 4m tiện cho gia chủ bố trí tiểu cảnh sân vườn xanh. Phía sau để 1m làm phần sân và giếng trời giúp đảm bảo sự thông thoáng cho không gian sinh hoạt bên trong.
Cầu thang lưu thông giữa các tầng được bố trí cầu thang dọc, không làm mất đi quá nhiều diện tích sử dụng của không gian tầng 1 này. Tầng 1 ngoài mục đích sử dụng làm gara để xe thì còn bố trí thêm một phòng kho nhỏ và bên cạnh là phòng vui chơi cho trẻ em. Đây được xem như cách bố trí công năng phù hợp cho nhu cầu sử dụng tầng 1 của gia chủ.
Dưới đây là bản vẽ bố trí công năng sử dụng tầng 2 còn được gọi là lầu 1.
Diện tích sinh hoạt ở tầng 2 hay còn gọi là lầu 1 có diện tích cụ thể rộng 6x15m được bày trí các công năng gồm có phòng khách, phòng bếp và bàn ăn, phía cuối nhà là căn phòng vệ sinh chung. Việc thể hiện công năng như trong bản vẽ giúp không gian có được sự xuyên suốt, mang lại cảm giác rộng rãi và thoải mái nhất cho ngôi nhà.

Mặt bằng công năng sử dụng tầng 2 hay còn gọi là lầu 1 ở miền nam
Đây là hình ảnh bố trí công năng tầng 3 hay còn được gọi là lầu 2.
Tầng 3 hay còn gọi là lầu 2 của ngôi nhà được bố trí công năng có phòng ngủ 1 kết hợp phòng vệ sinh riêng, cuối nhà là căn phòng làm việc và có khu vực bố trí tiêu cảnh xanh. Khu vực này có bố trí thêm không gian chơi Bi a theo ý tưởng riêng của chủ nhà.

Hình ảnh bố trí công năng tầng 3 hay còn được gọi là lầu 2.
Dưới đây là hình ảnh bố trí công năng tầng 4 hay còn gọi là lầu 3 của ngôi nhà.
Hai căn phòng ngủ ở tầng 4 được bố trí dành cho bé gái và bé trai trong gia đình. Phòng karaoke bố trí ở giữa và bên cạnh là phòng vệ sinh chung. Bố trí các công năng sử dụng như vậy là hợp lý, phù hợp với nhu cầu sử dụng của các thành viên trong gia đình.

hình ảnh bố trí công năng tầng 4 hay còn gọi là lầu 3 của ngôi nhà.
Dưới đây là bộ hồ sơ thiết kế nhà 4 tầng diện tích 6x15m đẹp của Kiến Trúc Lê bàn giao cho khách hàng để xây dựng lên ngôi nhà mơ ước của mình. Bạn đang có ý định xây nhà 4 tầng đẹp hãy liên hệ ngay với Kiến Trúc Lê để được tư vấn thiết kế một cách cụ thể và bài bản nhất nhé.

Hồ sơ bản vẽ thiết kế nhà 4 tầng 6x15m đẹp
Trên đây chính là những thông tin mà chúng tôi muốn chia sẽ dành cho bạn tham khảo để có một ý tưởng thiết kế nhà đẹp phù hợp nhất với gia đình bạn. Nếu cảm thấy mẫu nhà đẹp này phù hợp với ý tưởng của bạn mời bạn Liên hệ trực tiếp với Kiến Trúc Lê nhé. Với đội ngũ kiến trúc sư nổi tiếng tại Hà Nội của chúng tôi chắc chắn sẽ làm hài lòng mọi nhu cầu thiết kế nhà của bạn. Dù bạn là người khó tính nhất.
CÔNG TY TNHH KIẾN TRÚC LÊ VÀ CỘNG SỰ
♦ VPGD : P 3016 Tòa Nhà FLC Green Apartment - Số 18a Phạm Hùng - Mỹ Đình - Nam Từ Liêm - Hà Nội
♦ Hotline: 093.999.1981
♦ Zalo : 093.999.1981
♦ Website: Kientrucle.com
♦ Email: Kientruclevacongsu@gmail.com
Đây là danh sách các mẫu thiết kế nhà biệt thự đẹp nhất hiện nay của Kiến Trúc Lê. Mời bạn tham khảo
Các dự án thiết kế kiến trúc đã tư vấn triển khai cho khách hàng trên các tỉnh thành Việt Nam
.jpg)
(Điền thông tin vào form)