Quan tâm: 8907
Kiến Trúc Lê xin chia sẻ với bạn mẫu thiết kế nhà ống 4 tầng hiện đại đẹp nhất 2020 do Kiến Trúc Lê tư vấn thiết kế cho khách hàng của mình đầu 2020 tại Hà Nội. Mời bạn tham khảo làm ý tưởng cho ngôi nhà của mình.
(Chúng tôi sẽ gọi lại ngay sau khi bạn đăng ký)
Kiến Trúc Lê xin chia sẻ với bạn mẫu thiết kế nhà ống 4 tầng hiện đại đẹp nhất 2020 do Kiến Trúc Lê tư vấn thiết kế cho khách hàng của mình đầu 2020 tại Hà Nội. Mời bạn tham khảo làm ý tưởng cho ngôi nhà của mình.
Bạn đang có ý định xây nhà ống 4 tầng hiện đại đẹp. Bạn đang vào mạng internet tham khảo cho mình một mẫu thiết kế nhà 4 tầng hiện đại làm ý tưởng cho ngôi nhà của mình. Kiến Trúc Lê xin giới thiệu đến bạn mẫu nhà 4 tầng hiện đại đẹp do công ty chúng toio mới đây đã tư vấn thiết kế cho khách hàng của mình đầu 2020. Hy vọng mẫu nhà ống 4 tầng đẹp này sẽ mang lại ý tưởng tuyệt vời cho ngôi nhà sắp xây của bạn.
Kiến Trúc Lê là đơn vị chuyên nghiệp về tư vấn thiết kế kiến trúc nhà ở theo ý tưởng riêng và theo phong thủy cho khách hàng của mình có trụ sở chính tại Hà Nội và hoạt động tư vấn thiết kế cho tất cả khách hàng có nhu cầu trên khắp các tỉnh thành của Việt Nam. Chỉ cần bạn liên hệ là đội ngũ kiến trúc sư thiết kế nhà đẹp của chúng tôi luôn sẵn sàng tư vấn phục vụ mọi nhu cầu về thiết kế nhà ở của bạn.
Dưới đây mời bạn tham khảo chi tiết về mẫu nhà ống 4 tầng đẹp mang phong cách hiện đại do chúng tôi thiết kế cho khách hàng của mình.
| Tên dự án: Nhà ống 4 tầng đẹp | Diện tích đất xây dựng: 130m2 |
| Chủ đầu tư: Anh Tuấn | Diện tích xây dựng: 112 m2 |
| Địa điểm xây dựng: Bắc Từ Liêm, Hà Nội | Tổng diện tích sàn xây dựng: 448 m2 |
| Phong cách kiến trúc: Hiện Đại | Dịch vụ: Tư vấn thiết kế kiến trúc |

Mẫu mặt tiền nhà ống 4 tầng đẹp hiện đại
.jpg)
Nhà 4 tầng đẹp hiện đại

Nhà phố 4 tầng hiện đại

Mẫu nhà ống 4 tầng đẹp 2020

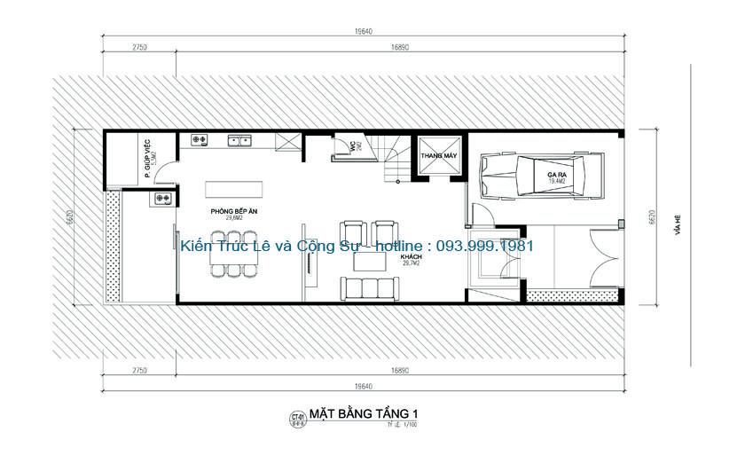
Bản vẽ thiết kế tầng 1 nhà phố 4 tầng hiện đại

Bản vẽ thiết kế tầng 2 nhà phố 4 tầng hiện đại

Bản vẽ thiết kế tầng 3 nhà phố 4 tầng hiện đại

Bản vẽ thiết kế tầng 4 nhà phố 4 tầng hiện đại
Các bạn thân mến. Bạn vừa tham khảo mẫu nhà phố 4 tầng đẹp hiện đại do chúng tôi tư vấn thiết kế cho khách hàng của mình tại Hà Nội thời gian qua. Nếu bạn ứng ý với mẫu thiết kế nhà phố 4 tầng hiện đại đẹp này của chúng tôi. Xin vui lòng liên hệ trực tiếp để được chúng tôi tư vấn thiết kế cụ thể cho bạn. Hoặc bạn có ý tưởng thiết kế nhà đẹp như thế nào, Chỉ cần liên hệ là chúng tôi sẽ tư vấn thiết kế theo đúng như ý tưởng thực tế của bạn. Cám ơn bạn đã tham khảo bài giới thiệu mẫu nhà 4 tầng hiện đại đẹp của chúng tôi.
CÔNG TY TNHH KIẾN TRÚC LÊ VÀ CỘNG SỰ
♦ VPGD : P 3016 Tòa Nhà FLC Green Apartment - Số 18a Phạm Hùng - Mỹ Đình - Nam Từ Liêm - Hà Nội
♦ Hotline: 093.999.1981
♦ Zalo : 093.999.1981
♦ Website: Kientrucle.com
♦ Email: Kientruclevacongsu@gmail.com
Đây là danh sách các mẫu thiết kế nhà biệt thự đẹp nhất hiện nay của Kiến Trúc Lê. Mời bạn tham khảo
Các dự án thiết kế kiến trúc đã tư vấn triển khai cho khách hàng trên các tỉnh thành Việt Nam
.jpg)
(Điền thông tin vào form)